Objektbeschreibung
Exposé – Anlageobjekt: Mehrfamilienhaus davon 5 Apartments für Kurzzeitvermietung genehmigt in Oberlaa U1 Station
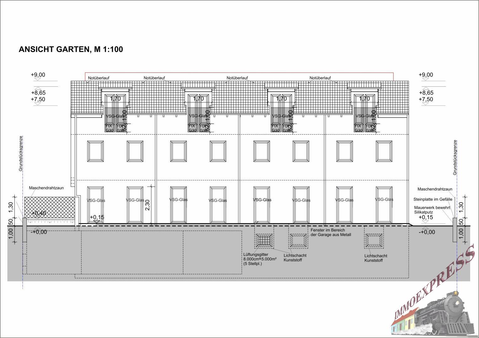
Objekttyp: Modernes Mehrfamilienhaus für Kurzzeitvermietung
Baujahr: 2022
Wohnungen: 5 vollmöblierte Einheiten mit je ca. 47 m², Es sind 5 Apartments für Kurzeitvermietung bewilligt. Von 2021 bis 2024 war das Gebäude als Hotel gewidmet, jedoch mit der Gesetzesänderung 2024 wurde
Mehr lesen
Objekt ID: 388000
Preis: € 1.790.000 pro Monat
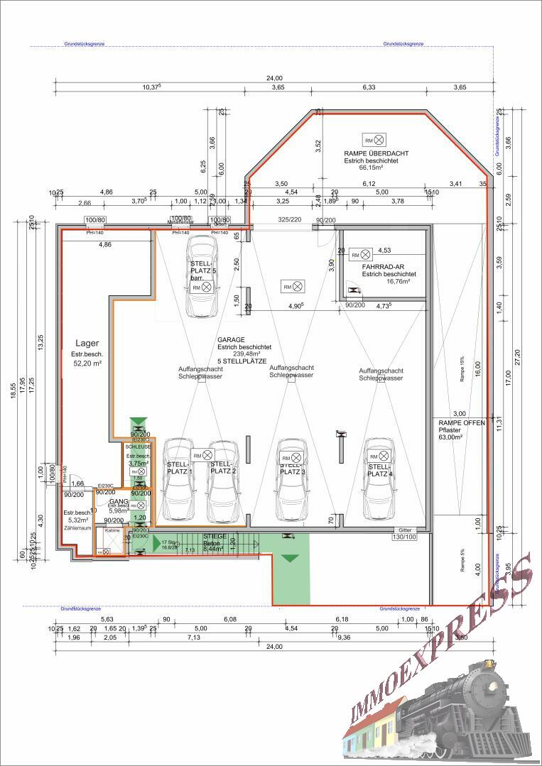
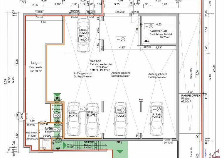
Nutzfläche: 559 m2
Gesamtfläche: 850 m2
Ziimmer insgesamt: 0
Schlafzimmer: 0
Badezimmer: 0
Nutzungsart: Anlage
Provision: provisionsfrei
HWB: 32 kWh/(m²*a)
HWB Klasse: B
FGEE: 0.78
Balkon/Terrassen - Fläche: 120
vollmöbliert
Neubau
Einbauküche
Gartennutzung
Keller
Ähnliche Objekte
Investieren in Lage & Qualität – helles ...
€ 267.500
3
Schlafzimmer
1
Badezimmer
54 m2
Größe
April 17, 2026



























