Objektbeschreibung
Moderne Gartenwohnung in ruhiger Lage – Ihr neues Zuhause in 1210 Wien
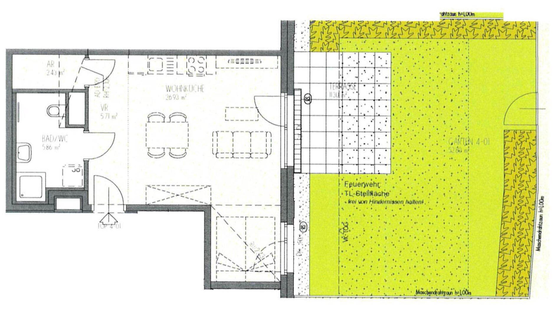
Diese charmante 2-Zimmer-Gartenwohnung bietet auf ca. 40 m² Wohnfläche ein durchdachtes Raumkonzept und ein behagliches Wohngefühl.
Herzstück der Wohnung ist die großzügige Wohnküche (ca. 26,9 m²), die viel Platz für Ihre individuelle Gestaltung bietet – ob gemütliche Sofaecke
Mehr lesen
Dokumente
Objekt ID: 47194
Preis: € 260.000
Nutzfläche: 41 m2
Gesamtfläche: 0 m2
Ziimmer insgesamt: 1
Schlafzimmer: 1
Badezimmer: 1
Miete/m2 €: 6352.31
Nutzungsart: Wohnen
Provisionspflichtig: ja
Provision: 3% des Kaufpreises zzgl. 20% USt.
HWB: 30,13 kWh/(m²*a)
HWB Klasse: B
FGEE: 0.79
E-Ausweis Gültig Bis:: 04.05.2030
Energieausweis Art: Bedarf
Balkon/Terrassen - Fläche: 11
Beziehbar: sofort
Etage: EG
WC: 1
Abstellräume: 1
barrierefrei
Neubau
Einbauküche
Personenaufzug
Dusche
Kabel/Sat-TV
Fahrradraum
Abstellraum
rollstuhlgerecht
Massiv
Massivbauweise
vollerschlossen
Wasch-/Trockenraum
Fernheizung
Fernwärme
Gartennutzung
schlüsselfertig mit Keller
seniorengerecht
Tiefgarage
Flachdach
Neubaustandard
Fertigparkett
Ähnliche Objekte
3 ZIMMER NEUBAUWOHNUNG IM 1. DACHGESCHOSS MI...
€ 689.000
3
Schlafzimmer
1
Badezimmer
87 m2
Größe
Februar 13, 2026
3 ZIMMER NEUBAUWOHNUNG MIT BALKON II 4. LIFT...
€ 669.000
3
Schlafzimmer
1
Badezimmer
84 m2
Größe
Februar 13, 2026















