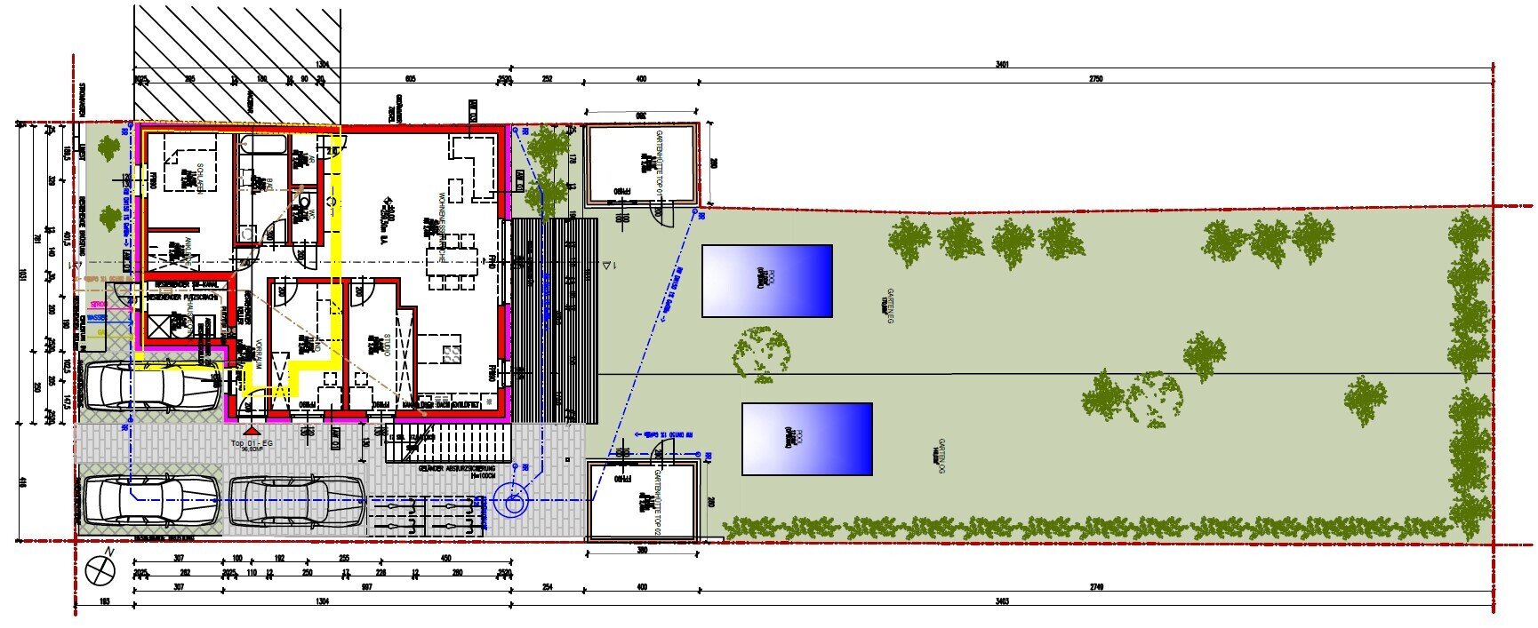
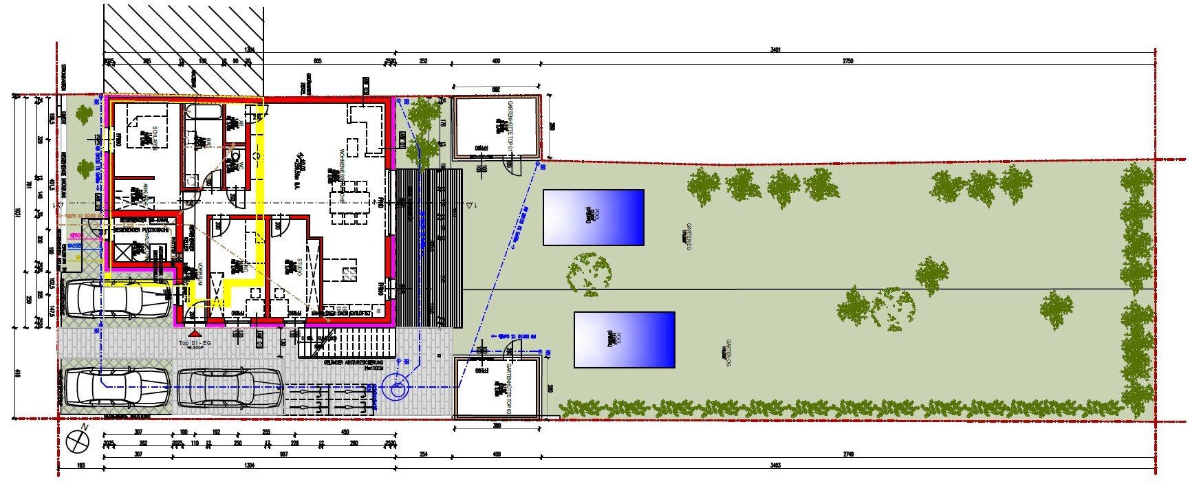
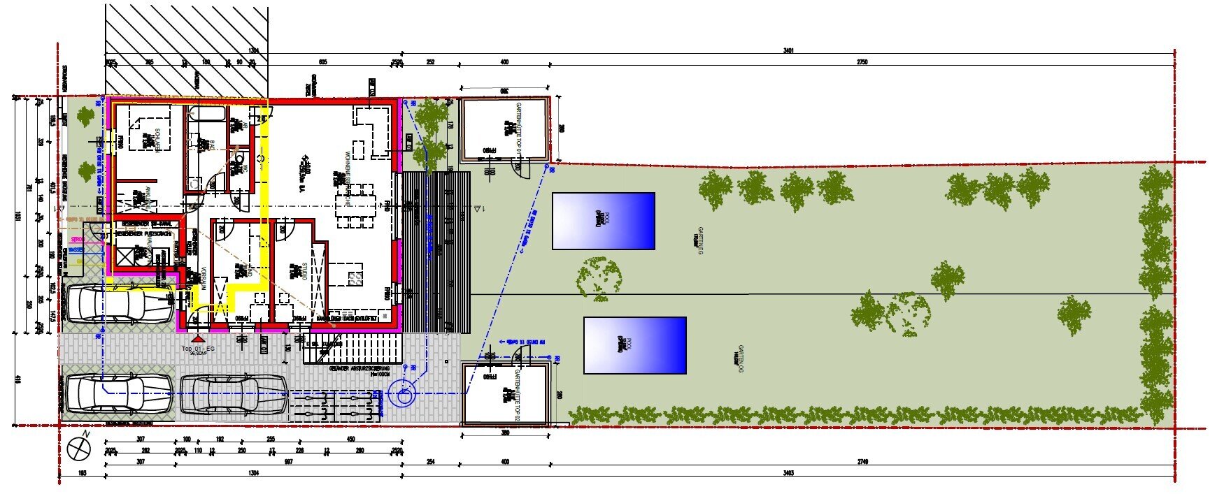
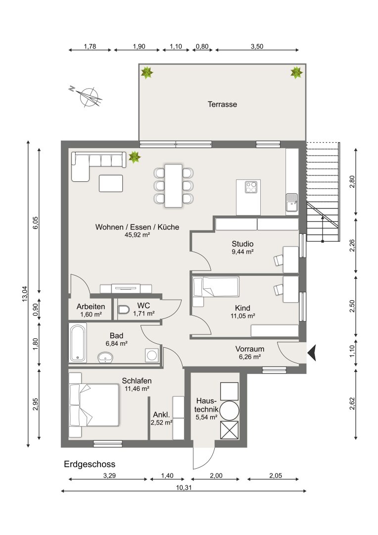
Objektbeschreibung
GARTENWOHNUNG MIT HAUSCHARAKTER – KÜFFELSTRASSE 26, 4030 LINZ
Zwischen Stadt und Natur entsteht in der Küffelstraße 26 ein Zuhause, das Leichtigkeit und Geborgenheit vereint. Eine Gartenwohnung mit über 96 m², die mehr ist als Wohnraum – ein Rückzugsort mit Hauscharakter.
Lage mit Balance
Grün, ruhig, verbunden: Die Küffelstraße steht
Mehr lesen
Dokumente
Objekt ID: 47337
Preis: € 450.000
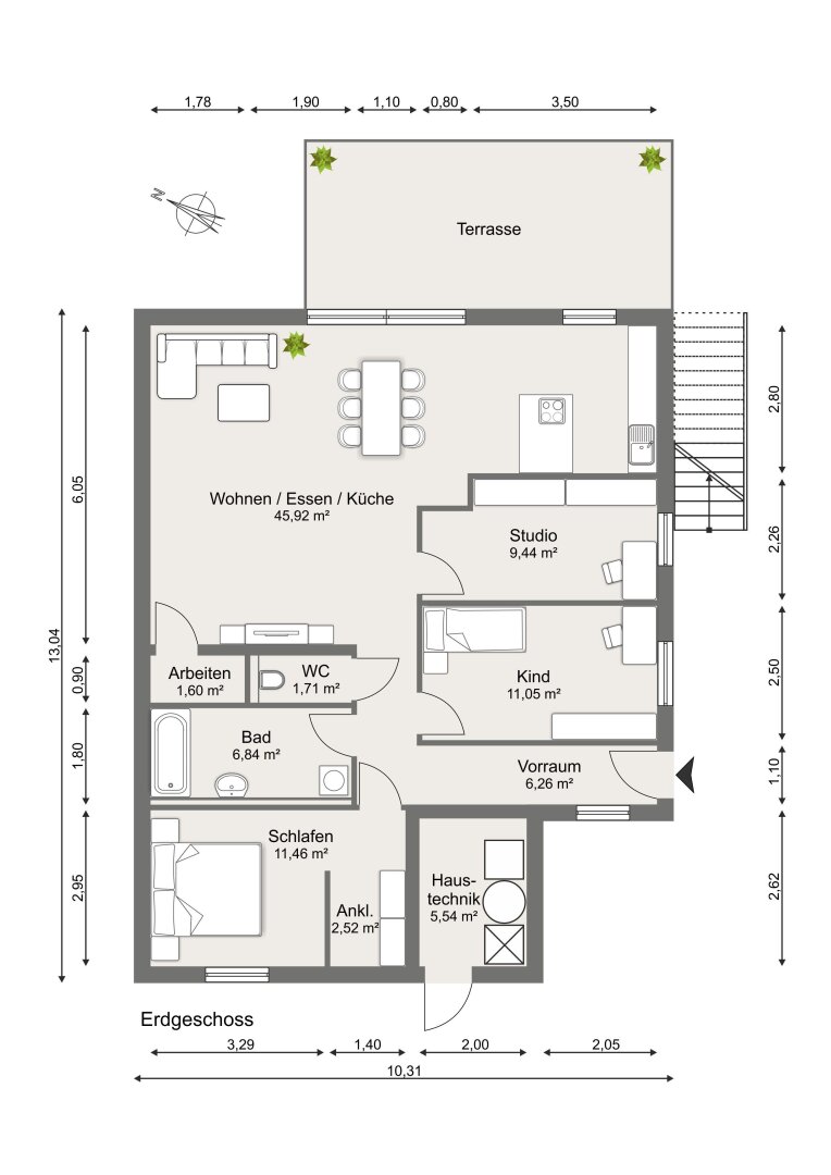
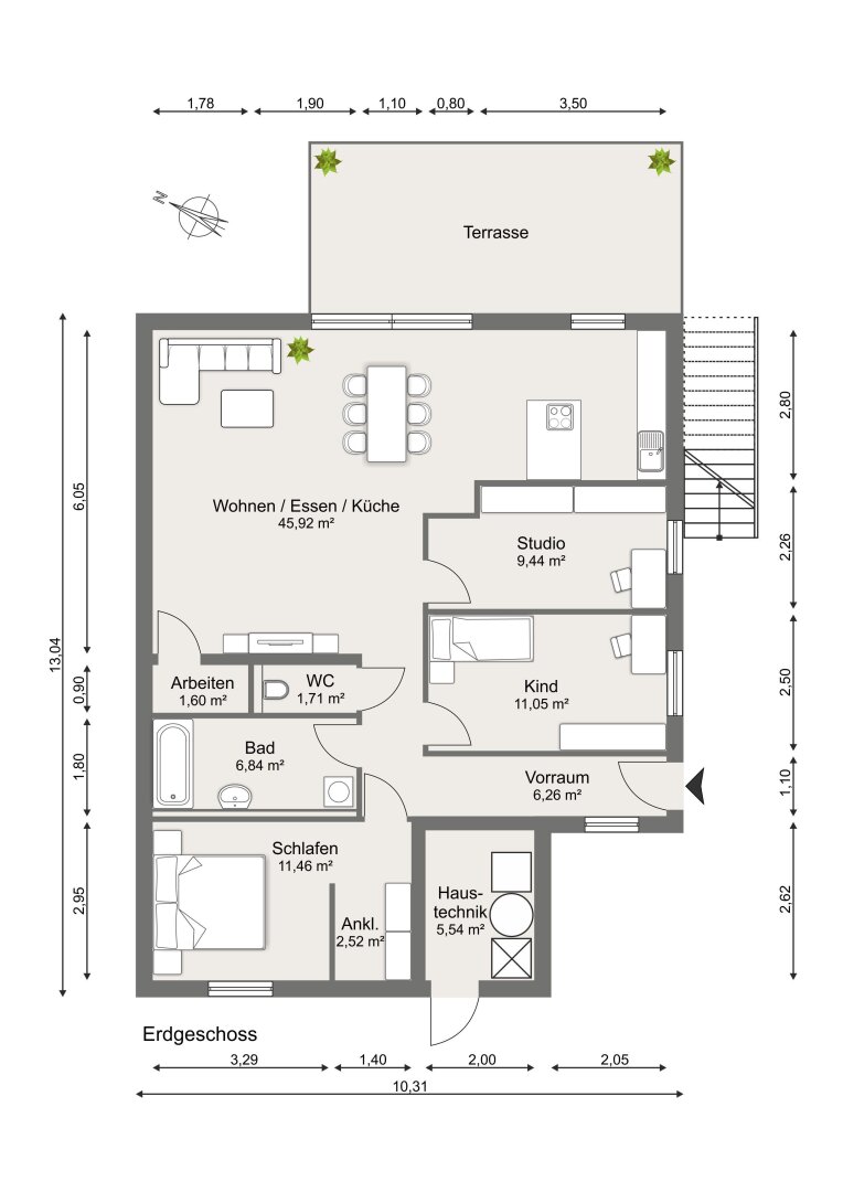
Nutzfläche: 97 m2
Gesamtfläche: 636 m2
Ziimmer insgesamt: 4
Schlafzimmer: 4
Badezimmer: 1
Miete/m2 €: 4663.21
Nutzungsart: Wohnen
Provisionspflichtig: ja
Provision: 3% des Kaufpreises zzgl. 20% USt.
HWB: 45 kWh/(m²*a)
HWB Klasse: B
FGEE: 0.9
E-Ausweis Gültig Bis:: 14.04.2034
Energieausweis Art: Bedarf
Beziehbar: 30.06.2026
Etage: EG
WC: 1
Abstellräume: 1
barrierefrei
Neubau
WG-geeignet
Gas
Parkett
Badewanne
Kabel/Sat-TV
Zentralheizung
offene Küche
Offene Küche
rollstuhlgerecht
Freiplatz
Massiv
Massivbauweise
schlüsselfertig mit Bodenplatte
vollerschlossen
Gartennutzung
seniorengerecht
Räume veränderbar
Satteldach



























