Objektbeschreibung
OBJEKTBESCHREIBUNG
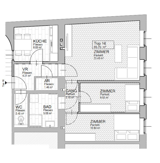
Diese frisch sanierte 3,5-Zimmer-Altbauwohnung vereint historischen Charme mit modernem Wohnkomfort. Sie befindet sich im 2. Obergeschoss eines gepflegten Altbauhauses in absoluter Ruhelage und ist bequem per Lift erreichbar. Die Wohnung wurde im Jahr 2024 umfassend renoviert und bietet nun einen hochwertigen Erstbezug in attraktiver Lage des 15. Bezirks.
Mehr lesen
Objekt ID: 476059
Preis: € 319.000
Nutzfläche: 66 m2
Gesamtfläche: 0 m2
Ziimmer insgesamt: 3
Schlafzimmer: 3
Badezimmer: 1
Betriebskosten €: 278
Nutzungsart: Anlage
Provisionspflichtig: ja
Provision: 3% des Kaufpreises zzgl. 20% USt.
HWB: 45 kWh/(m²*a)
HWB Klasse: B
FGEE: 1.14
E-Ausweis Gültig Bis:: 03.09.2034
Energieausweis Art: Bedarf
Etage: 2. Etage
WC: 1
Abstellräume: 1
Personenaufzug
Altbau
Etagenheizung
Gas
Parkett
Dusche
Ähnliche Objekte
Stilvoll sanierte 1-Zimmer-Eigentumswohnung ...
€ 219.000
1
Schlafzimmer
1
Badezimmer
38 m2
Größe
Januar 9, 2026
Top-Frequenzlage & Grundriss auch für Pr...
€ 398.800
4
Schlafzimmer
2
Badezimmer
121 m2
Größe
Januar 9, 2026






