Objektbeschreibung
OBJEKTBESCHREIBUNG
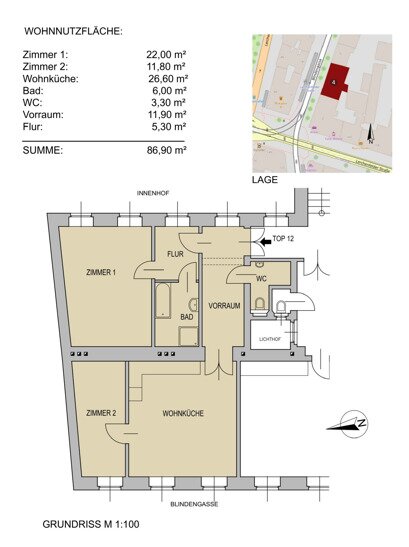
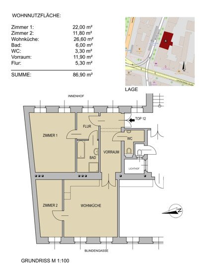
In einer der gefragtesten Lagen Wiens – der Josefstadt – erwartet Sie diese großzügige 3-Zimmer-Altbauwohnung im 2. Obergeschoss eines geschmackvollen Gründerzeithauses. Die ca. 87,6 m² große Wohnung bietet durch ihre geschickte Raumaufteilung sowie zeitlose Ausstattung den perfekten Mix aus historischem Charme und zeitgemäßem Wohnkomfort.
Die Wohnung eignet sich ideal
Mehr lesen
Objekt ID: 477500
Preis: € 495.000
Nutzfläche: 88 m2
Gesamtfläche: 0 m2
Ziimmer insgesamt: 3
Schlafzimmer: 3
Badezimmer: 1
Nutzungsart: Anlage
Provisionspflichtig: ja
Provision: 3% des Kaufpreises zzgl. 20% USt.
HWB: 67,30 kWh/(m²*a)
HWB Klasse: C
FGEE: 1.43
E-Ausweis Gültig Bis:: 25.02.2033
Energieausweis Art: Bedarf
Etage: 2. Etage
WC: 1
Abstellräume: 1
Einbauküche
Personenaufzug
Altbau
Etagenheizung
Gas
Parkett
Badewanne
Abstellraum
Ähnliche Objekte
Grünes Refugium mitten in der Stadt: Maisone...
€ 850.000
4
Schlafzimmer
1
Badezimmer
131 m2
Größe
April 17, 2026
LAXURY: Provisionsfrei – 9. Stock dire...
€ 450.000
2
Schlafzimmer
1
Badezimmer
50 m2
Größe
April 17, 2026
Best Price! Directly at the main train stati...
€ 780.000
4
Schlafzimmer
2
Badezimmer
106 m2
Größe
April 17, 2026































