Objektbeschreibung
MODERNES REIHENHAUS MIT GARTEN UND TERRASSE IN RUHELAGE – FAMILIENFREUNDLICHES WOHNEN IM 22. BEZIRK
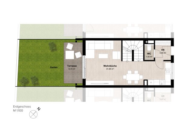
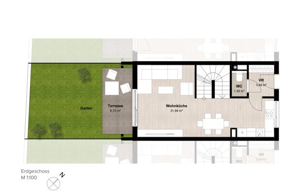
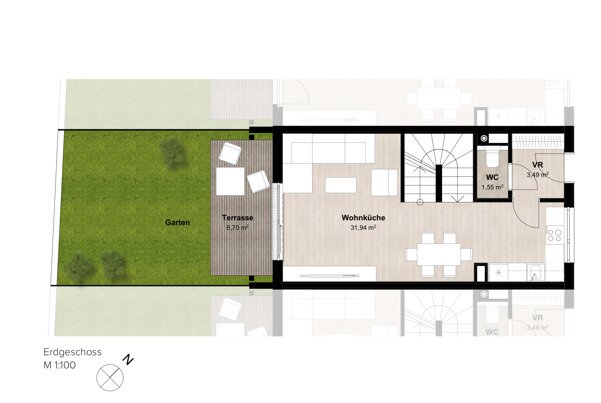
Inmitten eines ruhigen Wohnviertels im aufstrebenden 22. Wiener Gemeindebezirk erwartet Sie dieses stilvolle Reihenhaus mit durchdachter Raumaufteilung und hochwertiger Ausstattung. Das Haus bietet eine Wohnfläche von rund 103 m², verteilt auf zwei Wohnetagen, ergänzt durch einen voll
Mehr lesen
Objekt ID: 477641
Preis: € 580.000
Nutzfläche: 100 m2
Gesamtfläche: 180 m2
Ziimmer insgesamt: 4
Schlafzimmer: 4
Badezimmer: 3
Nutzungsart: Anlage
Provisionspflichtig: ja
Provision: 3% des Kaufpreises zzgl. 20% USt.
HWB: 32 kWh/(m²*a)
HWB Klasse: B
FGEE: 0.68
E-Ausweis Gültig Bis:: 04.08.2034
Energieausweis Art: Bedarf
Anzahl Balkone: 1
Balkon/Terrassen - Fläche: 20
Etage: EG
WC: 1
Abstellräume: 1
Balkon
Einbauküche
Gäste-WC
Parkett
Badewanne
Fußbodenheizung
Abstellraum
Freiplatz
Luft-Wärmepumpe



























