Verfügbare Einheiten
Objektbeschreibung
Objekt und Lage:
Das Haus befindet sich zwischen Rennweg und Hauptbahnhof, nahe der Fasangasse.
Die U4 Station Rennweg ist nur 5 Gehminuten entfernt und bietet eine schnelle Anbindung in die Innenstadt sowie zu weiteren wichtigen Knotenpunkten.
Der Standort verbindet angenehme Arbeitsatmosphäre mit einer sehr guten Verkehrsinfrastruktur.
Zahlreiche Nahversorgungsmöglichen, Restaurants
Mehr lesen
Objekt ID: 478963
Nutzfläche: 0 m2
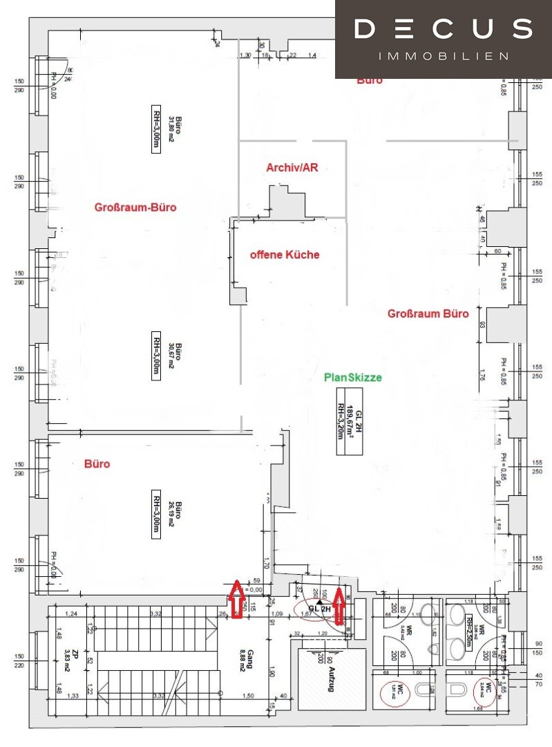
Gesamtfläche: 191 m2
Ziimmer insgesamt: 0
Schlafzimmer: 0
Badezimmer: 0
Miete/m2 €: 10
Miete (netto) €: 1909.8
Betriebskosten €: 467.9
Nutzungsart: Gewerbe
Provisionspflichtig: ja
HWB: 154,05 kWh/(m²*a)
Energieausweis Art: Bedarf




























