Objektbeschreibung
GARTENWOHNUNG MIT HAUSCHARAKTER IN RUHELAGE – KÜFFELSTRASSE 26, 4030 LINZ
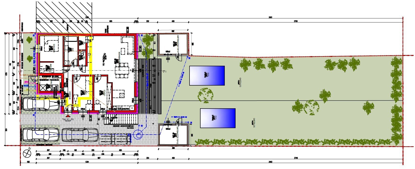
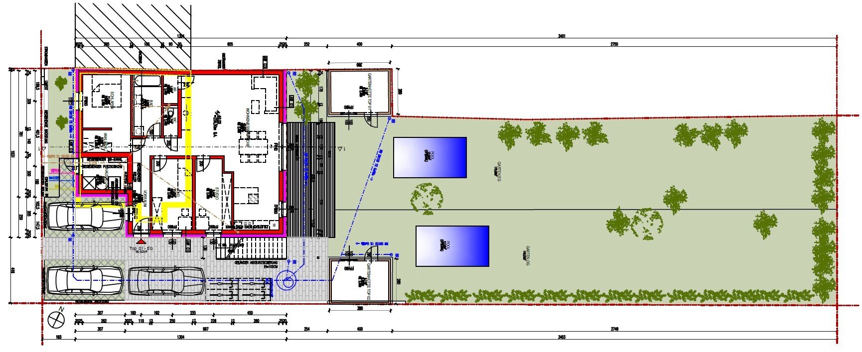
Zwischen Stadt und Natur entsteht in der Küffelstraße 26 ein Neubauprojekt, das Raum für Leichtigkeit, Klarheit und Alltag mit Qualität bietet.
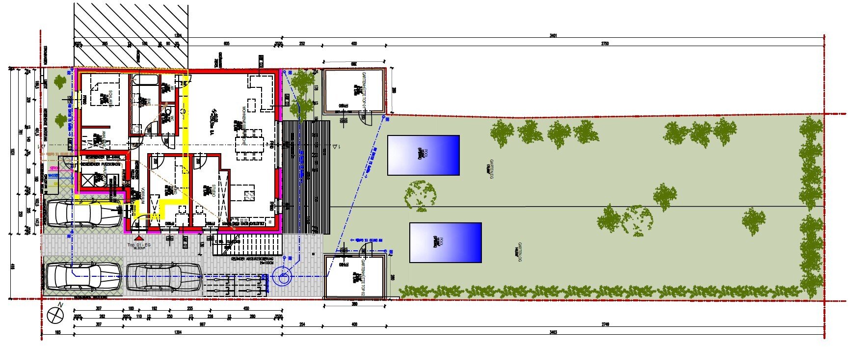
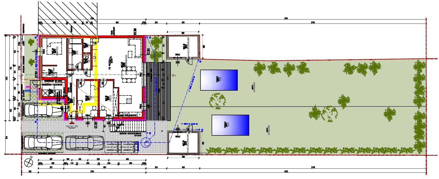
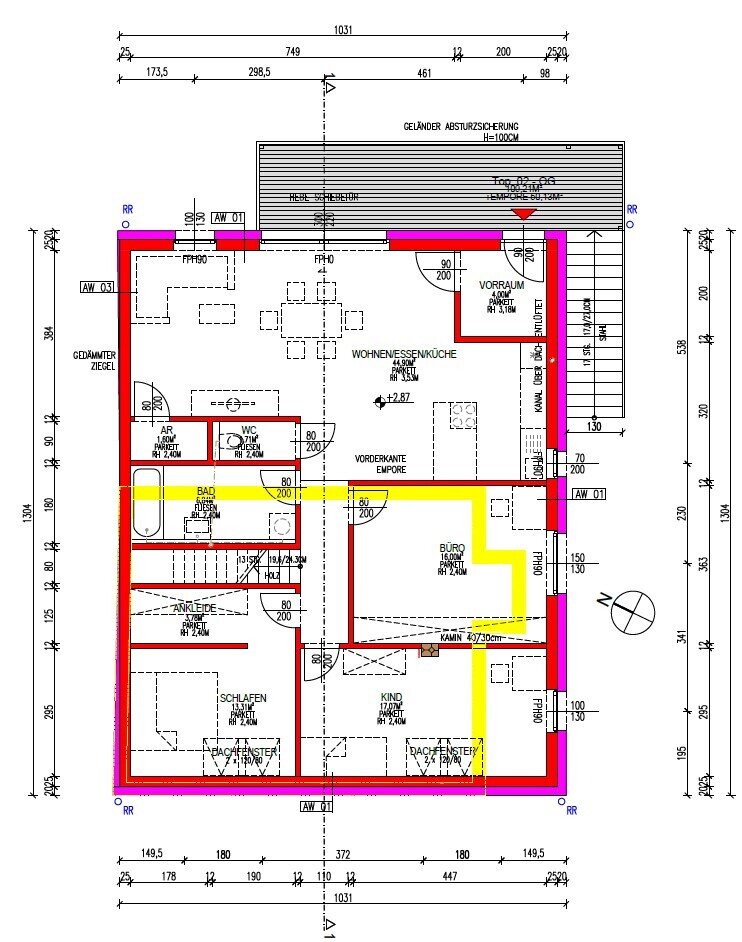
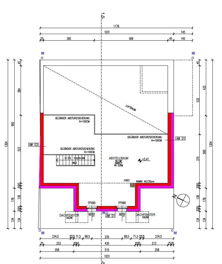
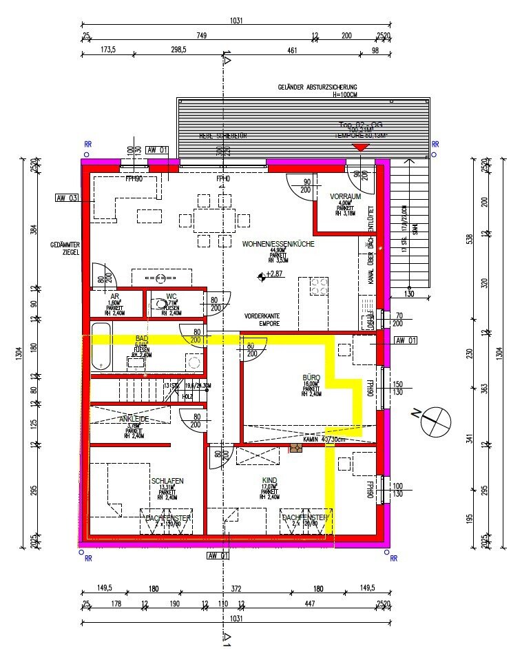
Die Gartenwohnung mit über 159 m² Wohnfläche und großzügigem Privatgarten vereint die Offenheit einer modernen Architektur mit der
Mehr lesen
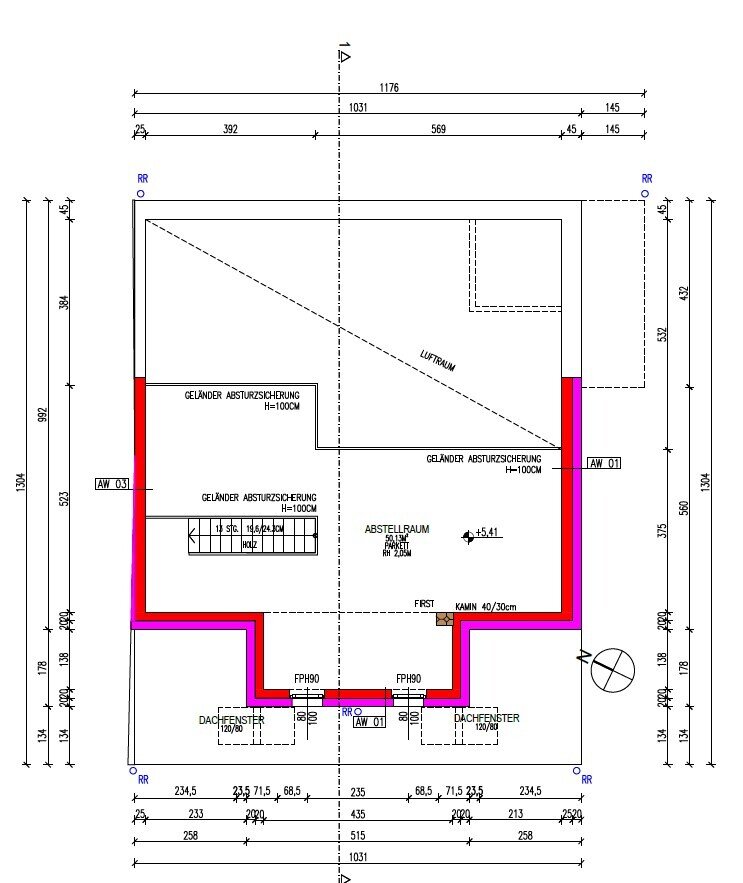
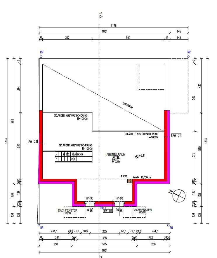
Dokumente
Objekt ID: 48484
Preis: € 649.000
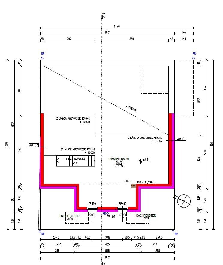
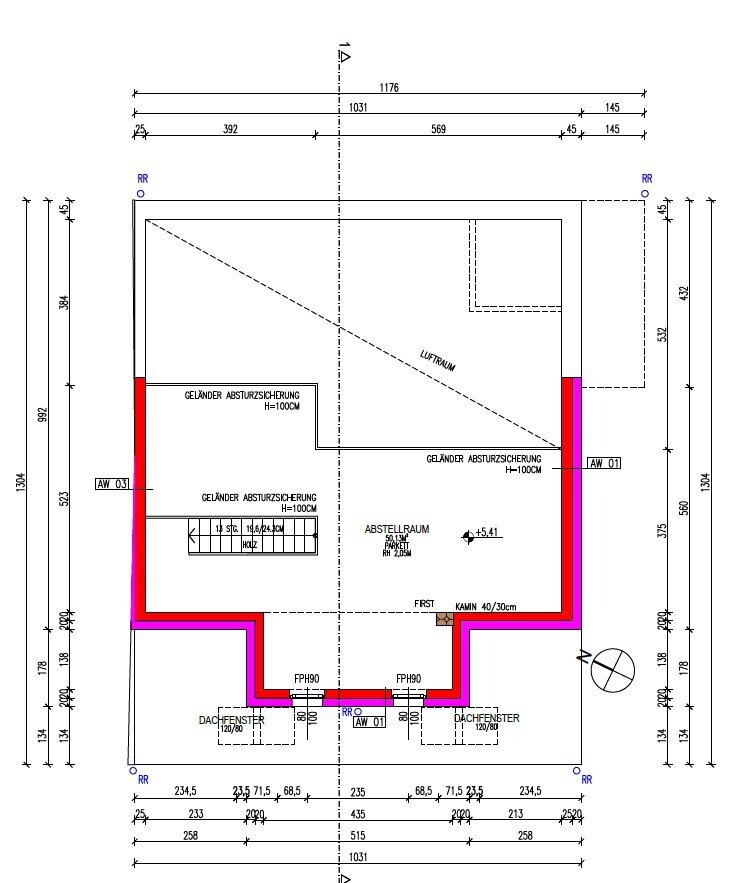
Nutzfläche: 159 m2
Gesamtfläche: 636 m2
Ziimmer insgesamt: 5
Schlafzimmer: 5
Badezimmer: 1
Miete/m2 €: 4073.05
Nutzungsart: Wohnen
Provisionspflichtig: ja
Provision: 3% des Kaufpreises zzgl. 20% USt.
HWB: 45 kWh/(m²*a)
HWB Klasse: B
FGEE: 0.9
E-Ausweis Gültig Bis:: 14.04.2034
Energieausweis Art: Bedarf
Beziehbar: 30.06.2026
Etage: 1. Etage
WC: 1
Abstellräume: 1
barrierefrei
Neubau
WG-geeignet
Gas
Parkett
Badewanne
Kabel/Sat-TV
Zentralheizung
offene Küche
Offene Küche
rollstuhlgerecht
Freiplatz
Massiv
Massivbauweise
schlüsselfertig mit Bodenplatte
vollerschlossen
Gartennutzung
seniorengerecht
Räume veränderbar
Satteldach































