Objektbeschreibung
Für die ersten 3 Monate wird auf die Zahlung des Hauptmietzinses verzichtet und wird erst ab dem 4. Monat die gesamte Miete fällig.
Das Bürogebäude befindet sich in der Moserhofgasse Ecke Münzgrabenstraße und ist von der Innenstadt und auch von der Autobahn mit öffentlichen Verkehrsmitteln sowie mit dem Auto bestens
Mehr lesen
Objekt ID: 506977
Preis: € 1.990.21 pro Monat
Nutzfläche: 0 m2
Gesamtfläche: 0 m2
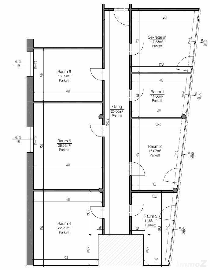
Ziimmer insgesamt: 7
Schlafzimmer: 7
Badezimmer: 0
Miete (netto) €: 1564.34
USt €: 398.04
Gesamtbelastung €: 1990.21
Nutzungsart: Anlage
Provision: 3 BMM zzgl. 20% MwSt.
Kaution: 3 BMM Überweisung
HWB: 74 kWh/(m²*a)
HWB Klasse: C
Energieausweis Art: Bedarf
Beziehbar: ab sofort
WC: 3
Neubau
Einbauküche
Parkett
vollerschlossen
Fernheizung
Fernwärme
Tiefgarage














