Objektbeschreibung
Das Eck-Wohnhaus aus der Gründerzeit wurde im Jahr 1907 von Stadtbaumeister Johann Meidl mit secessionistischen (Fassadengestaltung mit Noppen- und Putzfelderdekor, Gittertür) und klassizistischen Elementen (Stuck im Entré) in der Florianigasse / Ecke Schönborngasse errichtet.
Kunden profitieren von einer hervorragenden öffentlichen Anbindung durch die nahen Haltestellen der Straßenbahnlinien 2, 5 und
Mehr lesen
Objekt ID: 526094
Preis: € 395.000
Nutzfläche: 0 m2
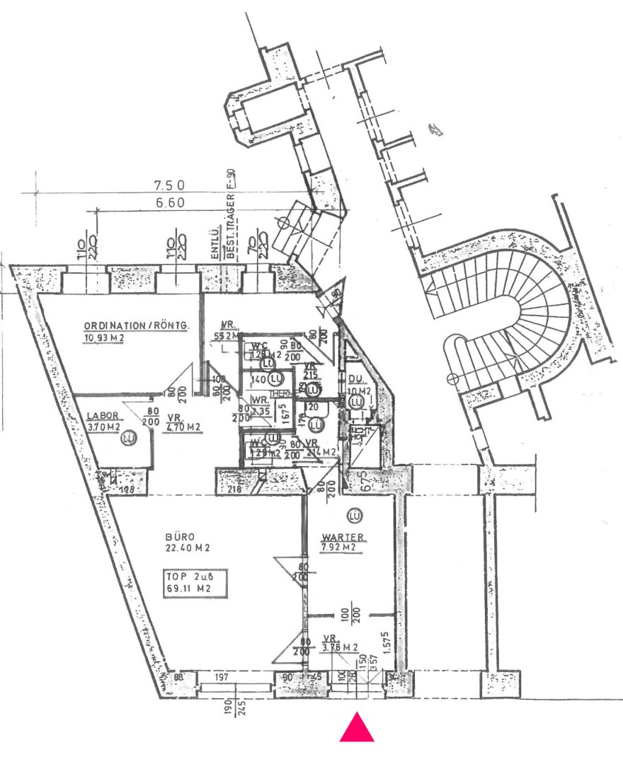
Gesamtfläche: 69 m2
Ziimmer insgesamt: 2
Schlafzimmer: 2
Badezimmer: 1
Betriebskosten €: 206.5
Nutzungsart: Gewerbe
Provisionspflichtig: ja
Provision: 3% des Kaufpreises zzgl. 20% USt.
HWB: 236,30 kWh/(m²*a)
HWB Klasse: F
FGEE: 1.8
E-Ausweis Gültig Bis:: 26.09.2033
Energieausweis Art: Bedarf
Beziehbar: n.V.
Etage: EG
WC: 2
Altbau
Gas
Dusche
Fußbodenheizung
Rollläden
Massiv
Massivbauweise
Teeküche
Kunststoff


















