Objektbeschreibung
Familientraum in der nähe der Schipiste
Lage: Das Einfamilienhaus befindet sich in wunderschöner Ruhelage. Nur wenige Gehminuten entfernt befindet sich ein Schilift und ein Hotel.
Hardfacts:
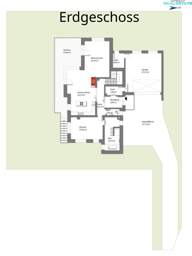
* 177m² Wohnfläche
* 5 Räume
* Doppelgarage
* Unterkellert
* 2 Badezimmer
* 2 separate WCs
Mehr lesen
Objekt ID: 532490
Preis: € 499.000
Nutzfläche: 177 m2
Gesamtfläche: 1.535 m2
Ziimmer insgesamt: 5
Schlafzimmer: 5
Badezimmer: 2
Nutzungsart: Wohnen
Provisionspflichtig: ja
Provision: 3% des Kaufpreises zzgl. 20% USt.
HWB: 51 kWh/(m²*a)
HWB Klasse: C
FGEE: 0.63
E-Ausweis Gültig Bis:: 19.11.2030
Energieausweis Art: Bedarf
Balkon/Terrassen - Fläche: 37
Beziehbar: Nach Vereinbarung
WC: 2
Neubau
Parkett
Bad mit Fenster
Kabel/Sat-TV
teilmöbliert
offene Küche
Offene Küche
Rollläden
Garage
vollerschlossen
Wasch-/Trockenraum
Fernheizung
Fernwärme
schlüsselfertig mit Keller
Neubaustandard
Pultdach
Ähnliche Objekte
8252 Skiregion Joglland: Großzügiges Landhau...
€ 890.000 pro Monat
12
Schlafzimmer
4
Badezimmer
500 m2
Größe
Oktober 18, 2025





