Objektbeschreibung
Jeder finanziert im Laufe seines Lebens eine Immobilie, entscheiden Sie selbst ob es Ihre eigene oder die des Vermieters sein soll.
Finanzierungsbeispiel für Ihr Eigenheim:
Unter gewissen Umständen ist es möglich, eine Finanzierung auch ohne Eigenkapital zu erhalten.
Ausgehend von einem Eigenkapitaleinsatz von rd. € 60.000,- ergibt sich für dieses Objekt ein Finanzierungsbedarf von rd. €
Mehr lesen
Objekt ID: 561229
Preis: € 399.500
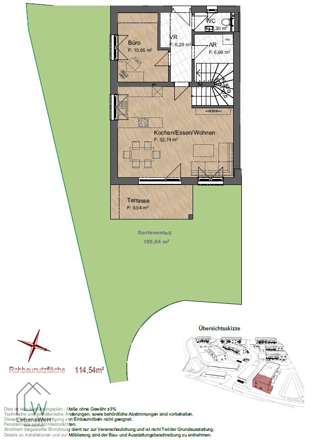
Nutzfläche: 114 m2
Gesamtfläche: 0 m2
Ziimmer insgesamt: 5
Schlafzimmer: 5
Badezimmer: 1
Nutzungsart: Anlage
Provisionspflichtig: ja
Provision: 3% des Kaufpreises zzgl. 20% USt.
HWB: 38,70 kWh/(m²*a)
HWB Klasse: B
FGEE: 0.73
E-Ausweis Gültig Bis:: 02.02.2025
Energieausweis Art: Bedarf
Balkon/Terrassen - Fläche: 9
WC: 1
Abstellräume: 1
Neubau
Bad mit Fenster
Fußbodenheizung
Abstellraum
Rollläden
Carport
Massiv
Massivbauweise
Dielen
Fernwärme
Flachdach








