Objektbeschreibung
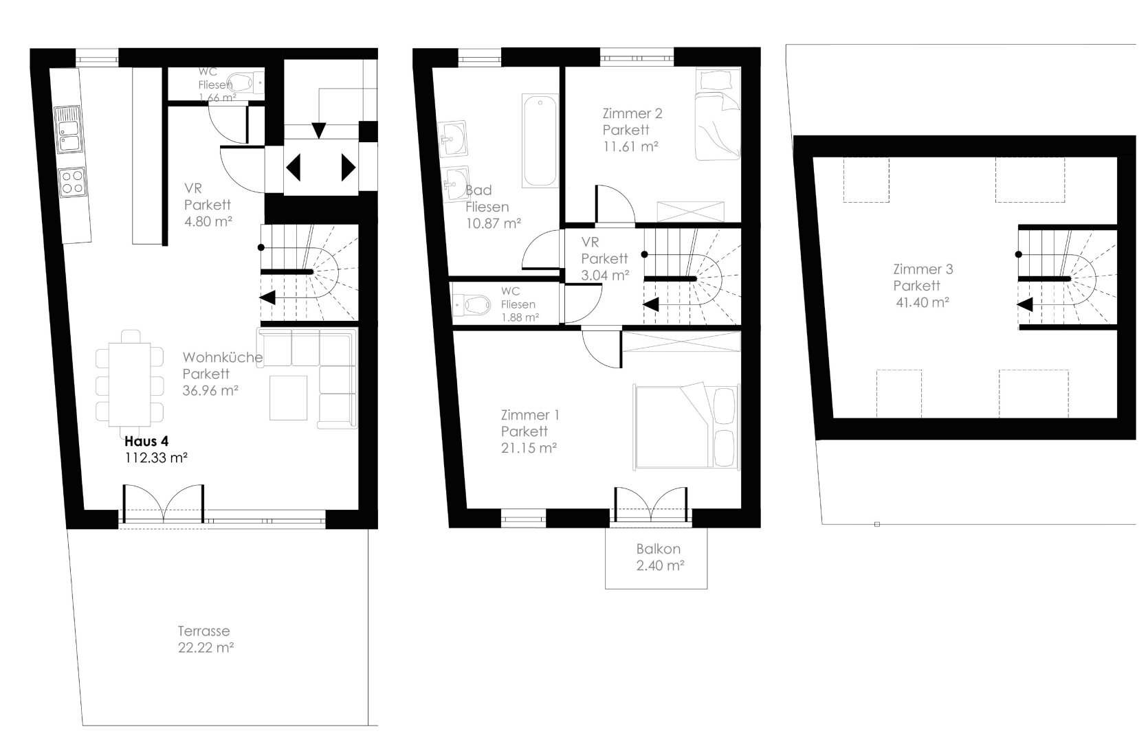
Dieses schöne SCHLÜSSELFERTIGE 4 Zimmer Haus mit ca. 133,37m² Wohnfläche und einer Terrasse von ca. 22,22m² lässt Träume Realität werden. Die Immobilie überzeugt durch Ihre südliche Ausrichtung und bezaubert durch die durchdachte Raumaufteilung und die ruhige Innenhoflage. Weiters profitieren Sie hier von der tollen öffentlicher Anbindung – Sie erreichen den Wiener Hauptbahnhof in ca. 15 Minuten.
Das Haus teilt
Mehr lesen
Objekt ID: 567533
Preis: € 515.000
Nutzfläche: 133 m2
Gesamtfläche: 158 m2
Ziimmer insgesamt: 4
Schlafzimmer: 4
Badezimmer: 1
Miete/m2 €: 3259.7
Nutzungsart: Wohnen
Provisionspflichtig: ja
Provision: 3% des Kaufpreises zzgl. 20% USt.
HWB: 38,53 kWh/(m²*a)
HWB Klasse: B
FGEE: 0.85
E-Ausweis Gültig Bis:: 03.08.2030
Energieausweis Art: Bedarf
Anzahl Balkone: 1
Balkon/Terrassen - Fläche: 24
WC: 1
Abstellräume: 1
Balkon
Neubau
Parkett
Bad mit Fenster
Fußbodenheizung
offene Küche
Abstellraum
Offene Küche
Freiplatz
Luft-Wärmepumpe
Massiv
Massivbauweise













