Objektbeschreibung
TOP SANIERTE ALTBAUWOHNUNGEN UND DG AUSBAU
Dieses Projekt bietet 6 exklusive und hochwertig sanierte Altbauwohnungen sowie 4 Wohnungen im ausgebauten Dachgeschoß, die Wohnflächen variieren von 46 bis 80 m². Mit hochwertiger Ausstattung und traumhaften Freiflächen verspricht dieses Projekt ein unvergleichliches Wohnambiente im Herzen Wiens.
Ausstattung:
Die Wohnungen in diesem Wohnbauprojekt
Mehr lesen
Dokumente
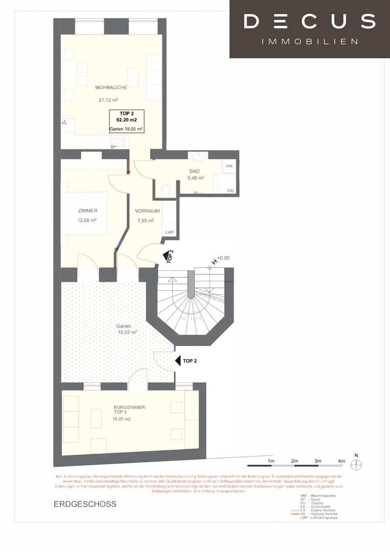
Objekt ID: 584081
Preis: € 415.280
Nutzfläche: 63 m2
Gesamtfläche: 81 m2
Ziimmer insgesamt: 2
Schlafzimmer: 2
Badezimmer: 1
Nutzungsart: Wohnen
Provisionspflichtig: ja
Provision: 3% des Kaufpreises zzgl. 20% USt.
HWB: 66,30 kWh/(m²*a)
HWB Klasse: C
FGEE: 0.57
E-Ausweis Gültig Bis:: 01.04.2035
Energieausweis Art: Bedarf
Etage: EG
WC: 1
Altbau
Ähnliche Objekte
Erstbezugs-Maisonette in Währing – luxuriös ...
€ 990.000
2
Schlafzimmer
1
Badezimmer
96 m2
Größe
März 16, 2026









