Objektbeschreibung
*** JETZT VORMERKEN! ***
Das Neubauprojekt SIEGFRIED63 in der gleichnamigen Siegfriedgasse umfasst 12 exklusive Wohnungen in ruhiger, naturnaher Umgebung.
Ruhe, Erholung, viel Grün und gleichzeitig Urbanität. Das bietet der Stadtteil „Donaufeld“ in Wien, Floridsdorf.
Perfekte Infrastruktur und eine Vielzahl an nahegelegenen Erholungsmöglichkeiten. Die Alte Donau ist nur wenige Gehminuten
Mehr lesen
Dokumente
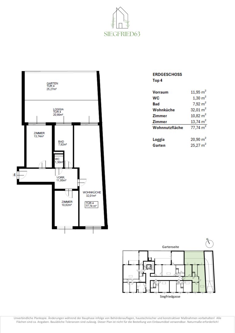
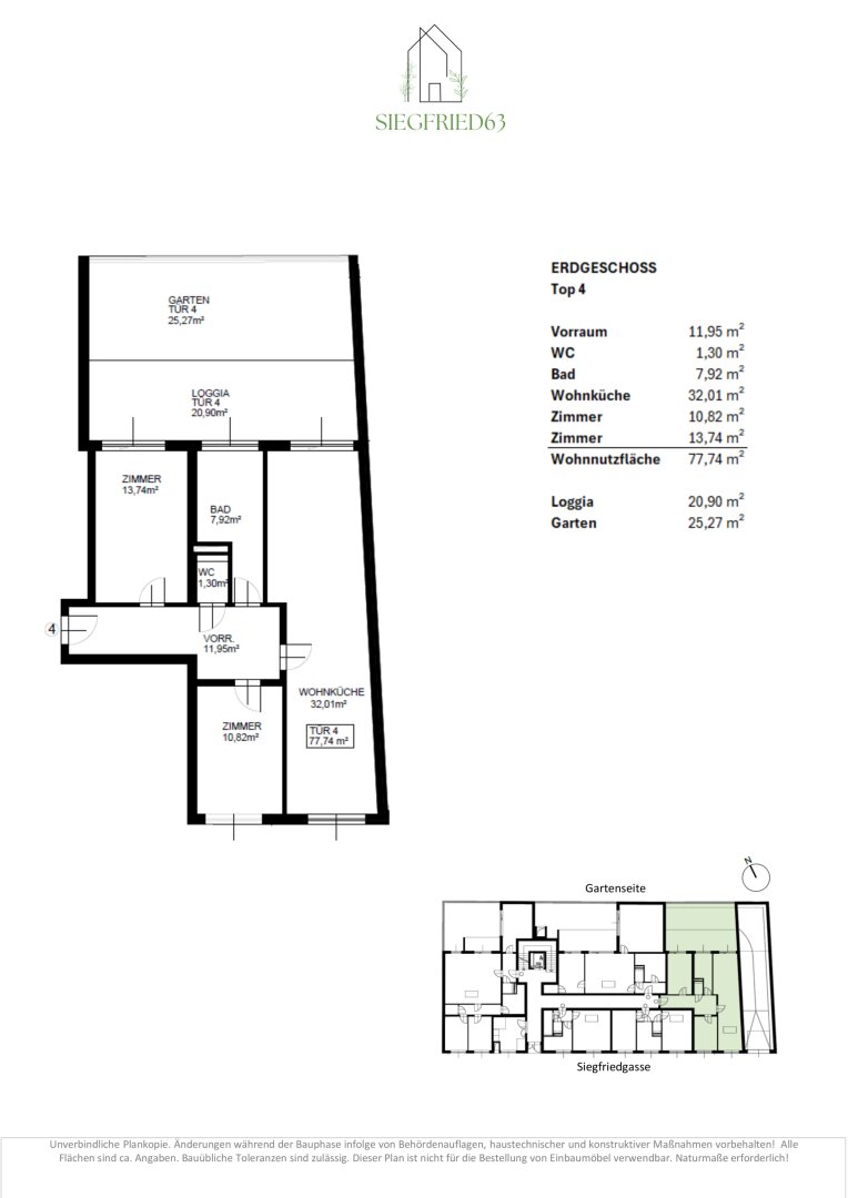
Objekt ID: 609760
Preis: € 549.000
Nutzfläche: 77 m2
Gesamtfläche: 124 m2
Ziimmer insgesamt: 3
Schlafzimmer: 3
Badezimmer: 1
Nutzungsart: Anlage
Provisionspflichtig: ja
Provision: 3% des Kaufpreises zzgl. 20% USt.
HWB: 36,80 kWh/(m²*a)
HWB Klasse: B
FGEE: 0.71
E-Ausweis Gültig Bis:: 21.04.2034
Energieausweis Art: Bedarf
Balkon/Terrassen - Fläche: 20
Etage: EG
WC: 1
Abstellräume: 1
Neubau
Personenaufzug
Parkett
Fußbodenheizung
Kabel/Sat-TV
Garage
Luft-Wärmepumpe
Ähnliche Objekte
Klein aber Fein; Erstbezug 2 Zimmerwohnung
€ 290.000
2
Schlafzimmer
1
Badezimmer
46 m2
Größe
April 17, 2026
Neubau-Highlight: 2 Zimmer & großer Aben...
€ 290.000
2
Schlafzimmer
1
Badezimmer
45 m2
Größe
April 17, 2026










