Objektbeschreibung
*** JETZT VORMERKEN! ***
Das Neubauprojekt SIEGFRIED63 in der gleichnamigen Siegfriedgasse umfasst 12 exklusive Wohnungen in ruhiger, naturnaher Umgebung.
Ruhe, Erholung, viel Grün und gleichzeitig Urbanität. Das bietet der Stadtteil „Donaufeld“ in Wien, Floridsdorf.
Perfekte Infrastruktur und eine Vielzahl an nahegelegenen Erholungsmöglichkeiten. Die Alte Donau ist nur wenige Gehminuten
Mehr lesen
Dokumente
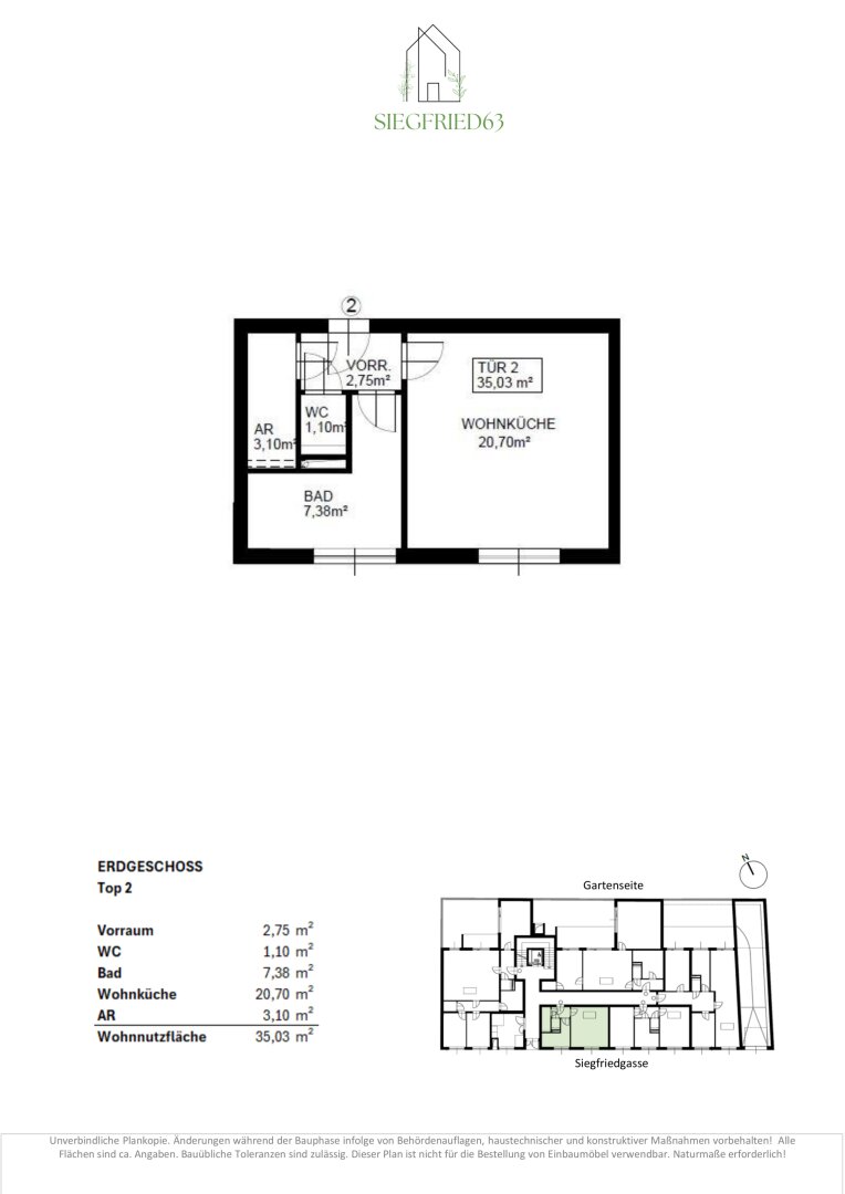
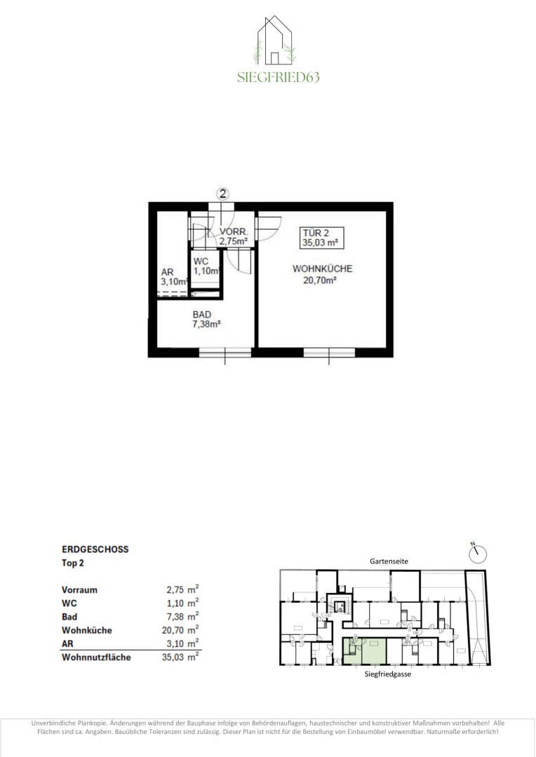
Objekt ID: 609774
Preis: € 210.000
Nutzfläche: 35 m2
Gesamtfläche: 35 m2
Ziimmer insgesamt: 1
Schlafzimmer: 1
Badezimmer: 1
Nutzungsart: Anlage
Provisionspflichtig: ja
Provision: 3% des Kaufpreises zzgl. 20% USt.
HWB: 36,80 kWh/(m²*a)
HWB Klasse: B
FGEE: 0.71
E-Ausweis Gültig Bis:: 21.04.2034
Energieausweis Art: Bedarf
Etage: EG
WC: 1
Abstellräume: 1
Neubau
Personenaufzug
Parkett
Fußbodenheizung
Kabel/Sat-TV
Garage
Luft-Wärmepumpe
Ähnliche Objekte
Provisionsfrei: Ein flexibles Raumwunder! Ne...
€ 568.700
4
Schlafzimmer
1
Badezimmer
89 m2
Größe
April 17, 2026
Provisionsfrei: Familiäres Wohnen in grüner ...
€ 728.400
5
Schlafzimmer
3
Badezimmer
131 m2
Größe
April 17, 2026
Rarität mit 5 oder 6 Zimmern + 2 Balkone in ...
€ 728.600
6
Schlafzimmer
2
Badezimmer
127 m2
Größe
April 17, 2026






