Objektbeschreibung
Zum Verkauf gelangen 11 Wohnungen und 1 Werkstatt in einer gepflegten Altbauliegenschaft mit thermisch sanierter Straßenfassade. Die Liegenschaft gliedert sich in ein Erdgeschoss und drei Obergeschosse, wobei Einheiten in jedem Geschoss zur Verfügung stehen. Der Großteil der Einheiten befindet sich in sanierungsbedürftigem Zustand und bietet somit Freiraum, diese nach den
Mehr lesen
Objekt ID: 634255
Preis: € 384.000
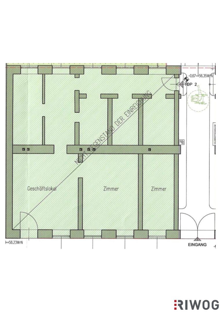
Nutzfläche: 213 m2
Gesamtfläche: 0 m2
Ziimmer insgesamt: 3
Schlafzimmer: 3
Badezimmer: 0
Nutzungsart: Wohnen
Provisionspflichtig: ja
Provision: 13.824,00 € inkl. 20% USt.
HWB: 104,03 kWh/(m²*a)
HWB Klasse: D
FGEE: 1.47
E-Ausweis Gültig Bis:: 26.04.2033
Energieausweis Art: Bedarf
Etage: EG / EG+KG/ST
WC: 1
Altbau
Ähnliche Objekte
Urbanes Wohnen mit Stil – moderne 4-Zimmer-A...
€ 1.070.000
4
Schlafzimmer
1
Badezimmer
121 m2
Größe
Dezember 12, 2025
Altbau I Etagenwohnung I Cottagelage
€ 2.220.000
5
Schlafzimmer
2
Badezimmer
172 m2
Größe
Dezember 12, 2025







