Objektbeschreibung
*** JETZT VORMERKEN! ***
Das Neubauprojekt SIEGFRIED63 in der gleichnamigen Siegfriedgasse umfasst 12 exklusive Wohnungen in ruhiger, naturnaher Umgebung.
Ruhe, Erholung, viel Grün und gleichzeitig Urbanität. Das bietet der Stadtteil „Donaufeld“ in Wien, Floridsdorf.
Perfekte Infrastruktur und eine Vielzahl an nahegelegenen Erholungsmöglichkeiten. Die Alte Donau ist nur wenige Gehminuten
Mehr lesen
Dokumente
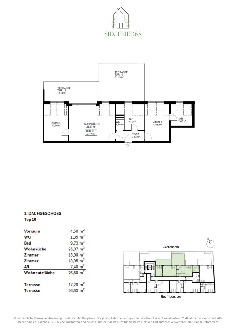
Objekt ID: 635320
Preis: € 530.000
Nutzfläche: 77 m2
Gesamtfläche: 121 m2
Ziimmer insgesamt: 3
Schlafzimmer: 3
Badezimmer: 1
Nutzungsart: Anlage
Provisionspflichtig: ja
Provision: 3% des Kaufpreises zzgl. 20% USt.
HWB: 36,80 kWh/(m²*a)
HWB Klasse: B
FGEE: 0.71
E-Ausweis Gültig Bis:: 21.04.2034
Energieausweis Art: Bedarf
Balkon/Terrassen - Fläche: 44
Etage: 1. DG
WC: 1
Abstellräume: 1
Neubau
Personenaufzug
Parkett
Fußbodenheizung
Kabel/Sat-TV
Garage
Klimaanlage
Luft-Wärmepumpe
Ähnliche Objekte
ROOF TOP DACHGESCHOSS MAISONETTE-PENTHOUSE M...
€ 429.000
4
Schlafzimmer
1
Badezimmer
91 m2
Größe
Januar 13, 2026


![Gartenidyll mit Gestaltungsfreiheit [A] 3dn6hdPpeSxU5BvrJvXDEe 1](https://gesucht-gefunden.at/wp-content/uploadstorage/2026/01/3dn6hdPpeSxU5BvrJvXDEe-1-525x350.jpg)



