Objektbeschreibung
Diese schöne 2-Zimmer Wohnung befindet sich in einem modernisierten Gründerzeithaus aus der Jahrhundertwende. Das Objekt besticht durch die perfekte Raumaufteilung, die großzügige Terrasse, sowie die ausgezeichnete Infrastruktur und Verkehrsanbindung. In unmittelbarer Nähe befindet sich der Elterleinplatz sowie das älteste bestehende Hallenbad Wiens – das Jörgerbad. In nur wenigen Gehminuten erreichen
Mehr lesen
Objekt ID: 637665
Preis: € 295.000
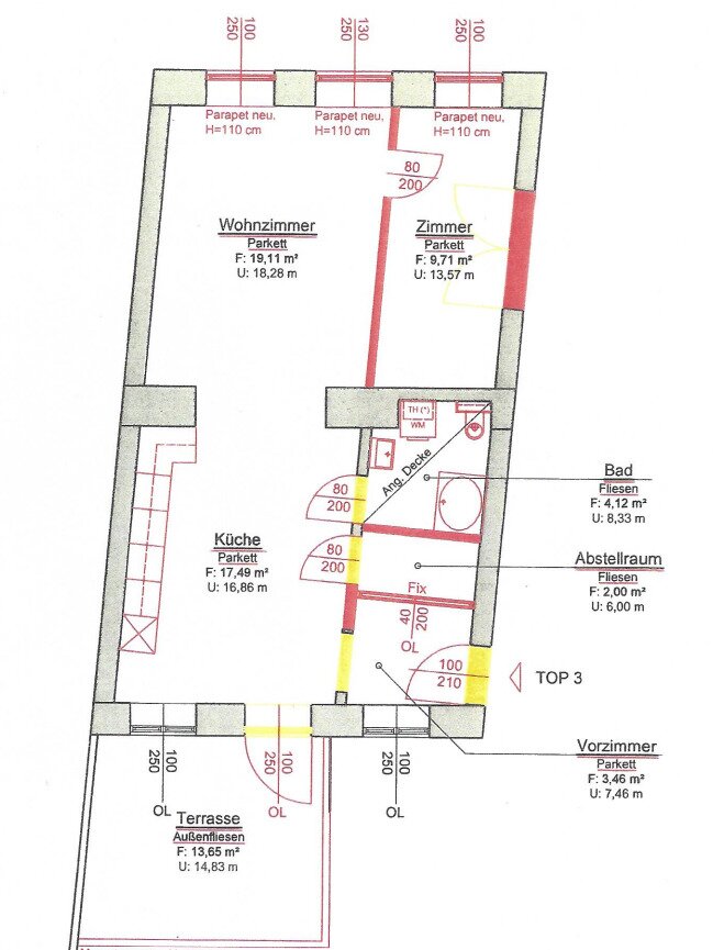
Nutzfläche: 57 m2
Gesamtfläche: 0 m2
Ziimmer insgesamt: 2
Schlafzimmer: 2
Badezimmer: 1
Nutzungsart: Wohnen
Provisionspflichtig: ja
Provision: 3% des Kaufpreises zzgl. 20% USt.
HWB: 95,70 kWh/(m²*a)
HWB Klasse: C
FGEE: 1.63
E-Ausweis Gültig Bis:: 12.06.2030
Energieausweis Art: Bedarf
Balkon/Terrassen - Fläche: 13
Beziehbar: sofort
Etage: EG
WC: 1
Abstellräume: 1
Personenaufzug
Altbau
Etagenheizung
Gas
Parkett
Dusche
teilmöbliert
Fahrradraum
offene Küche
Abstellraum
Offene Küche
vollerschlossen
Ähnliche Objekte
Helle 4-Zimmer-Neubauwohnung mit Loggia und ...
€ 880.000
4
Schlafzimmer
2
Badezimmer
103 m2
Größe
November 1, 2025
Stilvolle 4-Zimmer-Wohnung mit Loggia & ...
€ 880.000
4
Schlafzimmer
2
Badezimmer
103 m2
Größe
Oktober 31, 2025






