Objektbeschreibung
_NACHHALTIGES WOHNBAUPROJEKT IM HIPPEN MEIDLING _
_BEZUGSFERTIG_
In diesem zukunftsweisenden Wohnprojekt im angesagten Meidling, an der Ecke zur Längenfeldgasse entstanden 78 Wohnungen und 2 Ateliers mit verschiedenen Raumgrößen und eignen sich aufgrund der intelligenten Grundrissplanung perfekt für Singles, Paare und Familien. Zusätzlich entstanden 31 Tiefgaragenstellplätze. Die modernen Wohneinheiten sind mit Parkett
Mehr lesen
Objekt ID: 68290
Preis: € 528.500
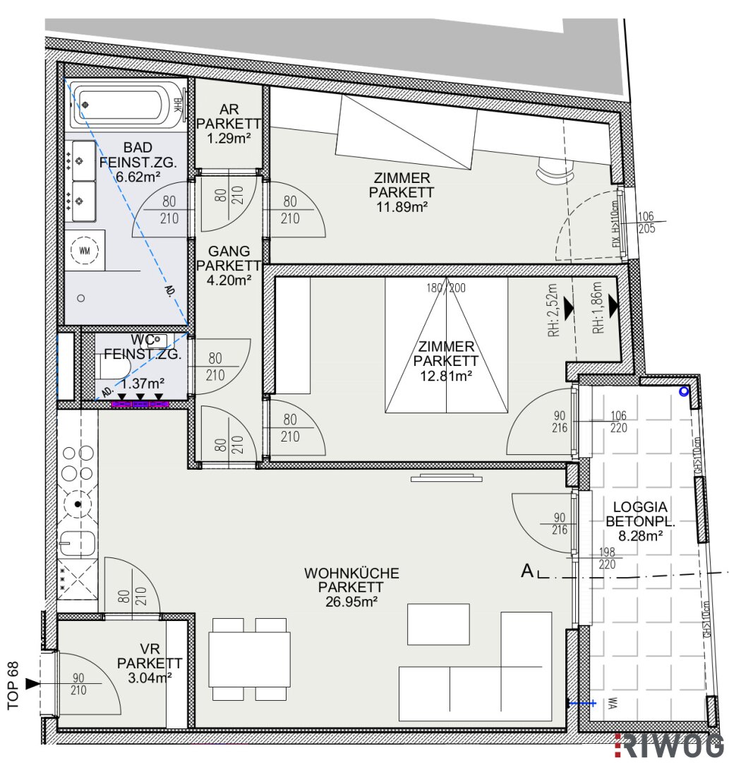
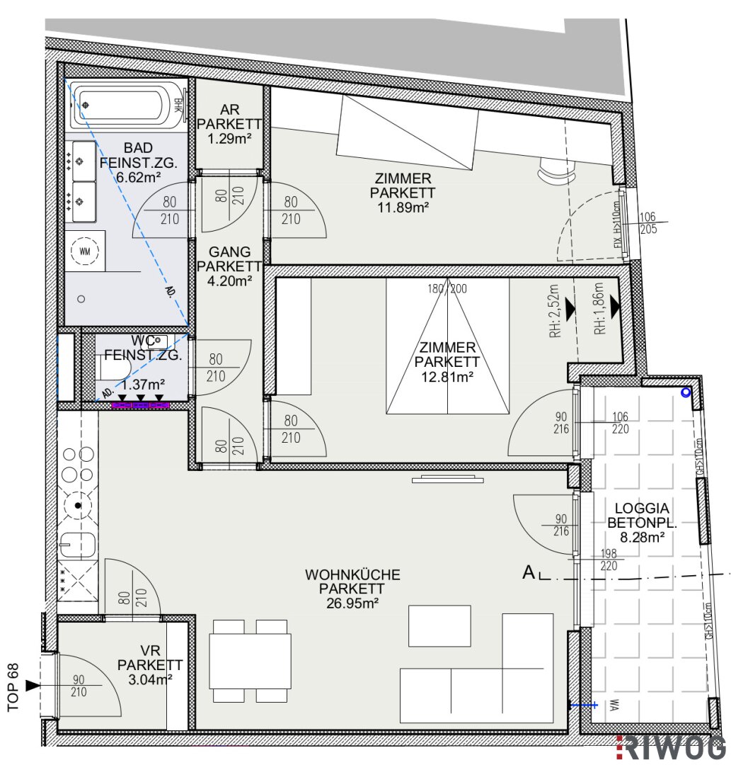
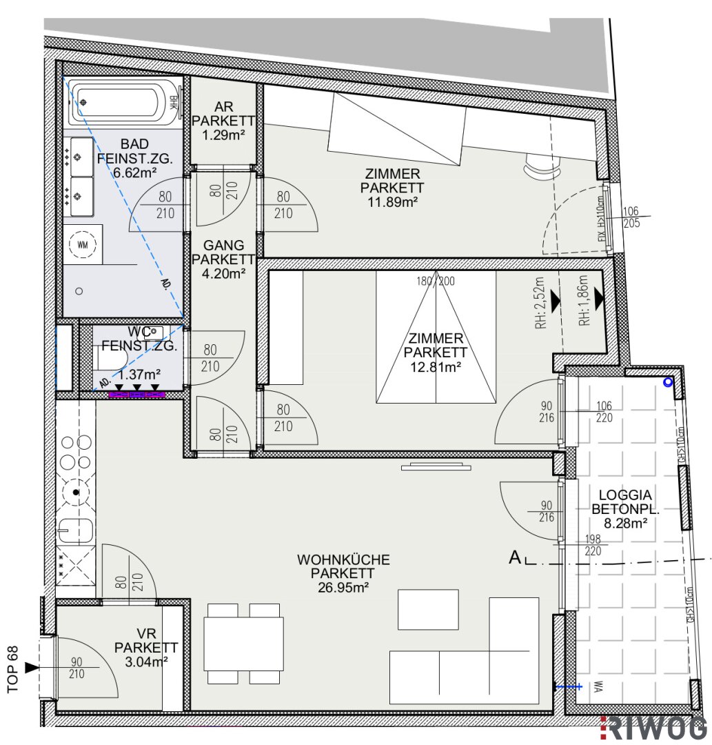
Nutzfläche: 68 m2
Gesamtfläche: 0 m2
Ziimmer insgesamt: 3
Schlafzimmer: 3
Badezimmer: 1
Nutzungsart: Anlage
Provisionspflichtig: ja
Provision: 19.026,00 € inkl. 20% USt.
HWB: 26,40 kWh/(m²*a)
HWB Klasse: B
FGEE: 0.73
E-Ausweis Gültig Bis:: 26.08.2031
Energieausweis Art: Bedarf
Balkon/Terrassen - Fläche: 8
Beziehbar: ab sofort
Etage: 5. Etage
WC: 1
Abstellräume: 1
barrierefrei
Neubau
Personenaufzug
Badewanne
Fußbodenheizung
Kabel/Sat-TV
Fahrradraum
offene Küche
Abstellraum
Offene Küche
Estrich
Fernwärme
Ähnliche Objekte
Provisionsfreier und leistbarer Wohntraum mi...
€ 439.000
3
Schlafzimmer
1
Badezimmer
70 m2
Größe
April 17, 2026
Ost-Süd-West Terrasse im City Garden! Viel P...
€ 629.000
4
Schlafzimmer
2
Badezimmer
87 m2
Größe
April 17, 2026
Sonnige Terrassenwohnung zwischen Liesingbac...
€ 289.000
2
Schlafzimmer
1
Badezimmer
40 m2
Größe
April 17, 2026


































