Objektbeschreibung
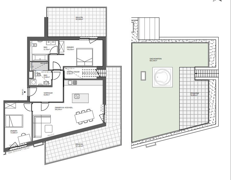
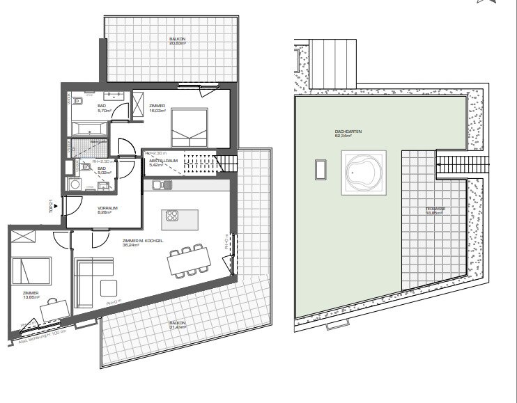
LUXURIÖSER ERSTBEZUG MIT TRAUMTERRASSE – 3-ZIMMER-DACHGESCHOSSWOHNUNG IN 1210 WIEN
In exklusiver Lage des 21. Bezirks erwartet Sie diese lichtdurchflutete 3-Zimmer-Dachgeschosswohnung mit großzügigen Außenflächen und hochwertiger Ausstattung. Der Erstbezug verbindet modernes Wohnen mit außergewöhnlichem Wohnkomfort und einem unvergleichlichen Panoramablick über Wien.
Auf rund 90,5 m² Wohnfläche wurde ein offenes Raumkonzept realisiert,
Mehr lesen
Objekt ID: 683316
Preis: € 898.000
Nutzfläche: 91 m2
Gesamtfläche: 224 m2
Ziimmer insgesamt: 3
Schlafzimmer: 3
Badezimmer: 2
Nutzungsart: Anlage
HWB: 29 kWh/(m²*a)
HWB Klasse: B
FGEE: 0.74
E-Ausweis Gültig Bis:: 12.11.2030
Energieausweis Art: Bedarf
Anzahl Balkone: 2
Balkon/Terrassen - Fläche: 124
Beziehbar: Sofort
Etage: 4. Etage
WC: 2
Abstellräume: 1
Balkon
Neubau
WG-geeignet
Personenaufzug
Parkett
Badewanne
Fußbodenheizung
Kabel/Sat-TV
Abstellraum
Garage
Erdwärme
Ähnliche Objekte
Großzügige 3-Zimmer-Gartenwohnung in Ruhelag...
€ 587.000
3
Schlafzimmer
1
Badezimmer
72 m2
Größe
April 17, 2026













































