Objektbeschreibung
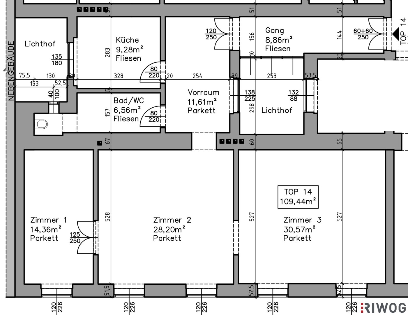
Zum Verkauf gelangt eine unbefristet vermietete Altbauwohnung mit ca. 109,4 m² Wohnfläche in absoluter Top-Lage des 1. Bezirks in der Operngasse, nur wenige Schritte von der Staatsoper entfernt. Gelegen ist die Wohnung im letzten Regelgeschoss (5. Stock mit Lift) eines imposanten Eckzinshauses aus 1870 mit elegant gegliederter Straßenfassade, wobei das Dachgeschoss bereits ausgebaut
Mehr lesen
Objekt ID: 69920
Preis: € 1.100.000
Nutzfläche: 109 m2
Gesamtfläche: 0 m2
Ziimmer insgesamt: 3
Schlafzimmer: 3
Badezimmer: 1
Nutzungsart: Anlage
Provisionspflichtig: ja
Provision: 39.600,00 € inkl. 20% USt.
HWB: 54,30 kWh/(m²*a)
HWB Klasse: C
FGEE: 1.3
E-Ausweis Gültig Bis:: 30.10.2033
Energieausweis Art: Bedarf
Etage: 5. Etage
WC: 1
barrierefrei
Personenaufzug
Altbau
Ähnliche Objekte
Exklusive Innenstadt Altbauwohnung – i...
€ 1.656.000
4
Schlafzimmer
2
Badezimmer
135 m2
Größe
April 26, 2026
LUXUS Penthouse im Zentrum – Die Welts...
€ 8.500.000
4
Schlafzimmer
4
Badezimmer
329 m2
Größe
April 24, 2026
Die Weltstadt | LUXUS Penthouse im Zentrum
€ 8.600.000
3
Schlafzimmer
3
Badezimmer
303 m2
Größe
April 24, 2026





















