Objektbeschreibung
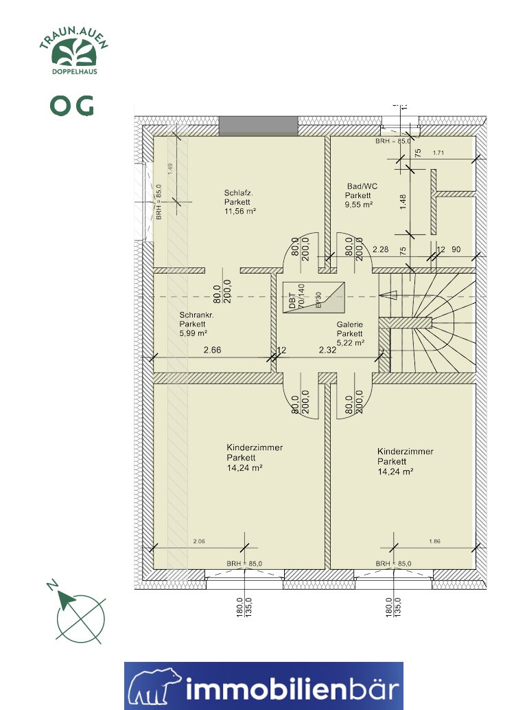
Willkommen in Ihrem neuen Zuhause im beliebten Wohngebiet _Traunauen_ in Wels! Diese hochwertige Doppelhaushälfte im Erstbezug vereint moderne Architektur mit durchdachter Raumaufteilung und energieeffizienter Ausstattung. Auf ca. 133,65m² Wohnfläche erwarten Sie großzügige, lichtdurchflutete Räume, die ideal auf das Leben von Familien, Paaren oder anspruchsvollen Singles zugeschnitten sind.
Das Erdgeschoss überzeugt
Mehr lesen
Dokumente
Adresse: Otto-Hahn-Straße 30
Ort: Wels
Bezirk: 4600
Bundesland: Oberösterreich
PLZ: 4600
Land: Österreich
Objekt ID: 704847
Preis: € 574.247
Nutzfläche: 134 m2
Gesamtfläche: 348 m2
Ziimmer insgesamt: 4
Schlafzimmer: 4
Badezimmer: 1
Nutzungsart: Wohnen
Provisionspflichtig: ja
Provision: 3% des Kaufpreises zzgl. 20% USt.
HWB: 38 kWh/(m²*a)
HWB Klasse: B
FGEE: 0.68
E-Ausweis Gültig Bis:: 28.01.2035
Energieausweis Art: Bedarf
Balkon/Terrassen - Fläche: 27
Beziehbar: sofort
WC: 2
Abstellräume: 1
Neubau
Gäste-WC
Parkett
Bad mit Fenster
Fußbodenheizung
Luft-Wärmepumpe
Walmdach
Ähnliche Objekte
Traumhaftes Reihenhaus in zentraler Lage ...
€ 295.000
3
Schlafzimmer
1
Badezimmer
122 m2
Größe
Oktober 26, 2025
Preisreduktion – neuwertige Doppelhaus...
€ 449.000
4
Schlafzimmer
2
Badezimmer
120 m2
Größe
Oktober 25, 2025
Exklusive Stadtvilla mit vielfältigen Möglic...
€ 998.000
8
Schlafzimmer
3
Badezimmer
324 m2
Größe
Oktober 24, 2025







