Objektbeschreibung
_Altbau trifft Moderne_
In einer ruhigen Seitengasse zwischen dem Belvedere, dem botanischen Garten und dem Schweizer Garten stehen derzeit im Herzen vom 3. Bezirk 16 Altbauwohnungen und 4 wunderschöne Dachgeschoss Wohnungen in Größen zwischen 59 m² – 108 m² zum Verkauf.
Am Altbau-Gebäude, welches im Jahr 1900 errichtet wurde, wurde
Mehr lesen
Objekt ID: 74001
Preis: € 419.000
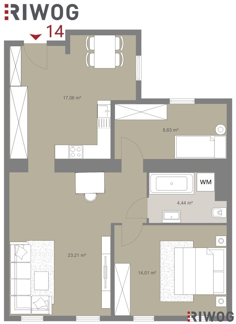
Nutzfläche: 67 m2
Gesamtfläche: 0 m2
Ziimmer insgesamt: 3
Schlafzimmer: 3
Badezimmer: 1
Nutzungsart: Wohnen
Provisionspflichtig: ja
Provision: 3% des Kaufpreises zzgl. 20% USt.
HWB: 48,87 kWh/(m²*a)
HWB Klasse: B
FGEE: 0.75
E-Ausweis Gültig Bis:: 14.11.2026
Energieausweis Art: Bedarf
Beziehbar: SOFORT
Etage: 3. Etage
WC: 1
WG-geeignet
Personenaufzug
Gas
Parkett
Badewanne
Fahrradraum
Zentralheizung
Massiv
Massivbauweise
Ähnliche Objekte
HELLE SÜDOSTLAGE IN DER UNTEREN AUGARTENSTRA...
€ 204.000
2
Schlafzimmer
1
Badezimmer
November 14, 2025
GLORIETTE-BLICK – MODERNE DG-WOHNUNG M...
€ 795.000
3
Schlafzimmer
1
Badezimmer
99 m2
Größe
November 14, 2025






