Erweiterte Suche
Andere Eigenschaften
Suchagent aktivieren
Exklusive Anzeigen

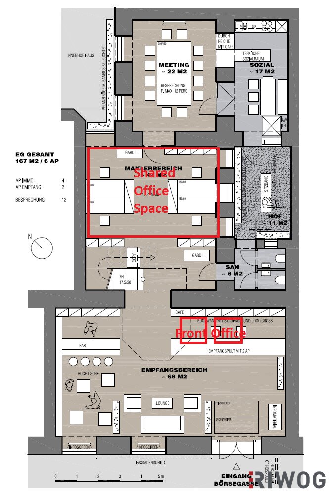
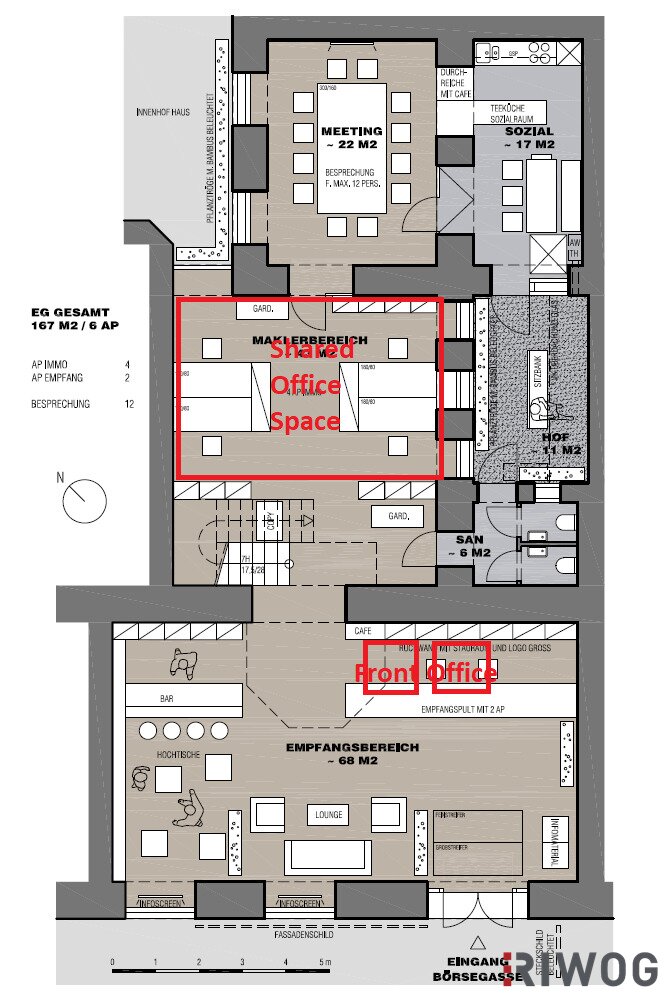
Modernes Büro mit Straßenzugang bei der alten Börse | Arbeitszimmer mit 4 Plätzen oder Plätze im Open Work Space verfügbar

,

zu Favoriten hinzufügen
teilen
Suchergebnisse

Objektbeschreibung

Wer sind wir

Seit inzwischen 15 Jahren sind wir im Immobilienbereich tätig und haben – um weiterhin für die Zukunft gewappnet zu sein – räumliche Reserven, die wir nun an genauso dynamische Unternehmer weitergeben möchten. Natürlich auch mit der Hoffnung, dass sich der eine oder andere Synergieeffekt ergibt. Wir sind
Mehr lesen

Ort:
Bezirk:
Bundesland:
PLZ: 1010
Land: Österreich
Objekt ID: 74104
Nutzfläche: 0 m2
Gesamtfläche: 167 m2
Ziimmer insgesamt: 0
Schlafzimmer: 0
Badezimmer: 0
Miete (netto) €: 390
USt €: 78
Nutzungsart: Gewerbe
Kaution: 3 Bruttomonatsmieten
Balkon/Terrassen - Fläche: 11
Beziehbar: nach Vereinbarung
Max. Mietdauer: unbefristet
Etage: EG
WC: 2
Einbauküche
Altbau
Etagenheizung
Parkett
Klimaanlage
Massiv
Massivbauweise
seniorengerecht
Alarmanlage
DV-Verkabelung

Ähnliche Objekte

vergleichen
6nLxXbQhnRz2CZkAZZXC6N

Cafés/Bar!

Oktober 1, 2025

RIWOG Real Estate Management GmbH
Tanja Federer, MA

Kontaktaufnahme









    • Preisinformation
      Miete netto390,00 €
      Ust.78,00 €

    Vergleichen