Objektbeschreibung
Ein attraktives Anlageobjekt steht in zentraler Lage von Gmünd, Niederösterreich, zum Verkauf. Das dreigeschossige Gebäude in massiver Bauweise bietet vielseitige Nutzungsmöglichkeiten und beeindruckt durch seine hervorragende Ausstattung und Lage.
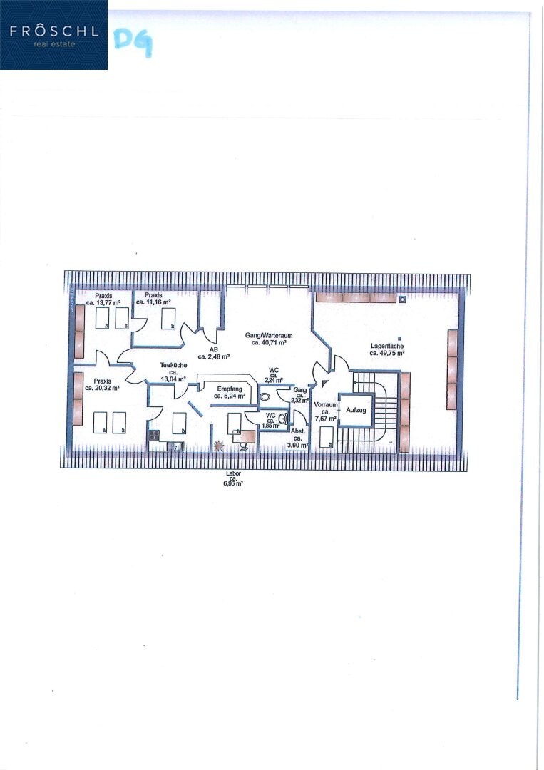
Vermietung und Nutzung: Die Immobilie ist vollständig vermietet, was stabile Mieteinnahmen garantiert. Die aktuellen Mieter umfassen Ärzte und ein Fitness-Center, was
Mehr lesen
Objekt ID: 743249
Preis: € 755.000
Nutzfläche: 0 m2
Gesamtfläche: 436 m2
Ziimmer insgesamt: 0
Schlafzimmer: 0
Badezimmer: 0
Miete/m2 €: 1733
Nutzungsart: Anlage
Provisionspflichtig: ja
Provision: 3% des Kaufpreises zzgl. 20% USt.
HWB: 81 kWh/(m²*a)
HWB Klasse: C
FGEE: 1.09
E-Ausweis Gültig Bis:: 01.03.2031
Energieausweis Art: Bedarf
WC: 6
Neubau
Personenaufzug
Gäste-WC
Gas
Dusche
Kabel/Sat-TV
teilmöbliert
Zentralheizung
Abstellraum
rollstuhlgerecht
Freiplatz
Massiv
Massivbauweise
vollerschlossen
Gartennutzung
Teeküche
Marmor
Satteldach










