Objektbeschreibung
_NACHHALTIGES WOHNBAUPROJEKT IM HIPPEN MEIDLING _
_BEZUGSFERTIG_
In diesem zukunftsweisenden Wohnprojekt im angesagten Meidling, an der Ecke zur Längenfeldgasse entstanden 78 Wohnungen und 2 Ateliers mit verschiedenen Raumgrößen und eignen sich aufgrund der intelligenten Grundrissplanung perfekt für Singles, Paare und Familien. Zusätzlich entstanden 31 Tiefgaragenstellplätze. Die modernen Wohneinheiten sind mit Parkett
Mehr lesen
Objekt ID: 75597
Preis: € 849.000
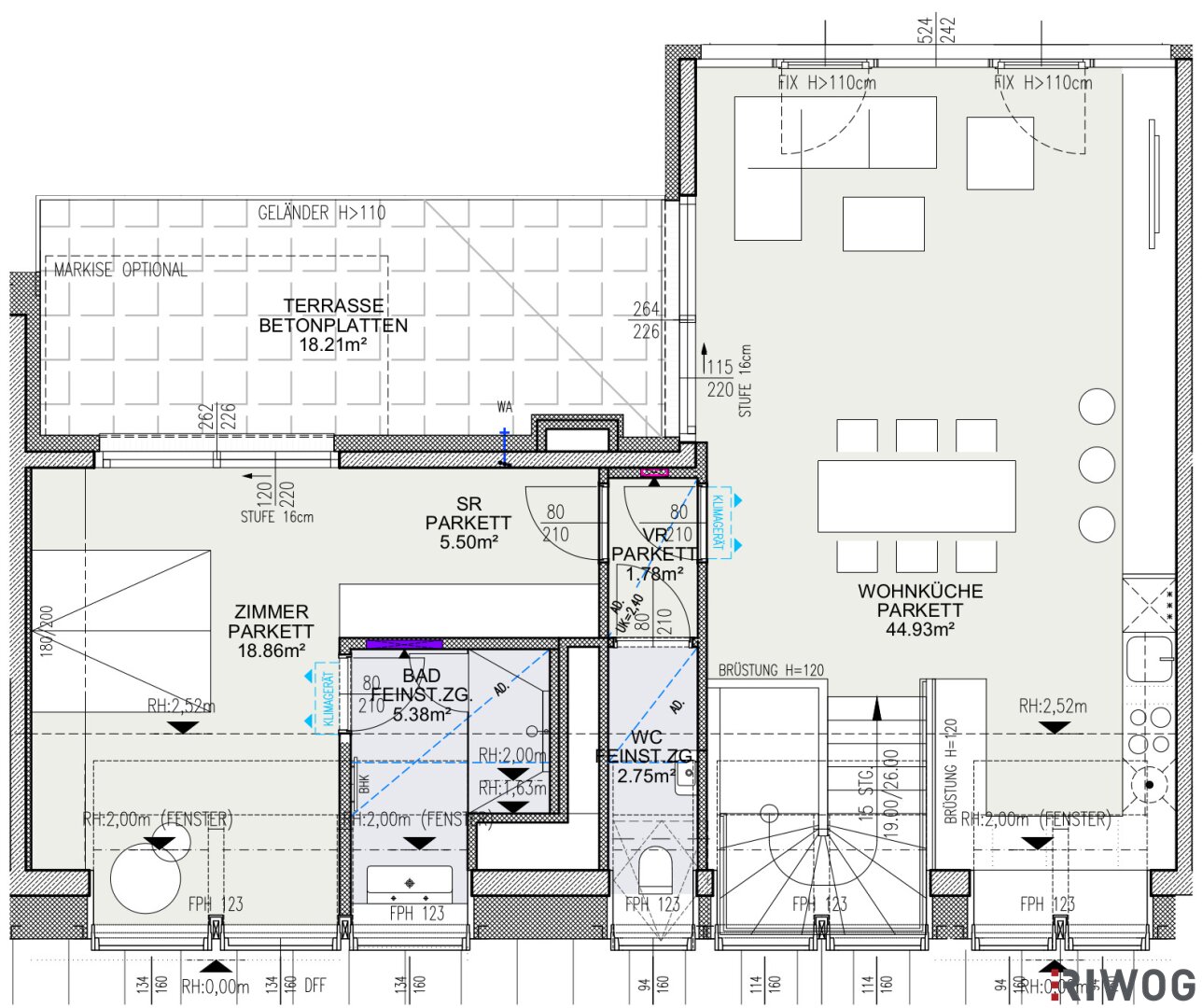
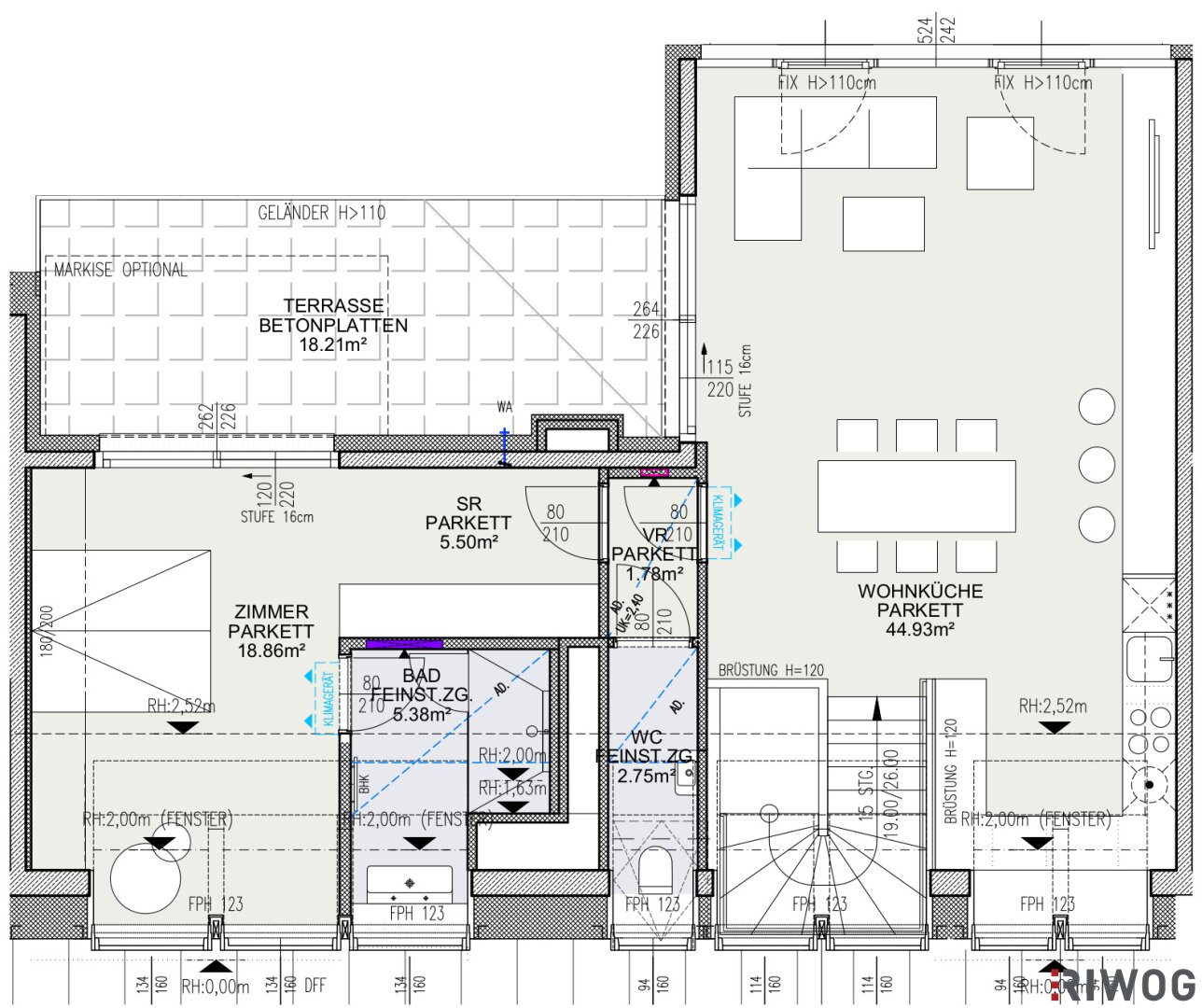
Nutzfläche: 110 m2
Gesamtfläche: 0 m2
Ziimmer insgesamt: 3
Schlafzimmer: 3
Badezimmer: 2
Nutzungsart: Anlage
Provisionspflichtig: ja
Provision: 30.564,00 € inkl. 20% USt.
HWB: 26,40 kWh/(m²*a)
HWB Klasse: B
FGEE: 0.73
E-Ausweis Gültig Bis:: 26.08.2031
Energieausweis Art: Bedarf
Balkon/Terrassen - Fläche: 18
Beziehbar: ab sofort
Etage: 1. DG / 1.DG + 2.DG
WC: 2
Abstellräume: 1
barrierefrei
Neubau
Personenaufzug
Gäste-WC
Bad mit Fenster
Fußbodenheizung
Kabel/Sat-TV
Fahrradraum
offene Küche
Abstellraum
Offene Küche
Rollläden
Klimaanlage
Estrich
Fernwärme
Ähnliche Objekte
Kurz vor Fertigstellung & 3 Jahre keine ...
€ 510.600
2
Schlafzimmer
1
Badezimmer
51 m2
Größe
April 17, 2026
Ruhige Vierzimmerwohnung mit hofseitigem Bal...
€ 618.600
4
Schlafzimmer
1
Badezimmer
75 m2
Größe
April 17, 2026
Provisionsfreie Familienwohnung: Kurz vor Fe...
€ 744.200
4
Schlafzimmer
1
Badezimmer
89 m2
Größe
April 17, 2026











































