Objektbeschreibung
_NACHHALTIGES WOHNBAUPROJEKT IM HIPPEN MEIDLING _
_BEZUGSFERTIG_
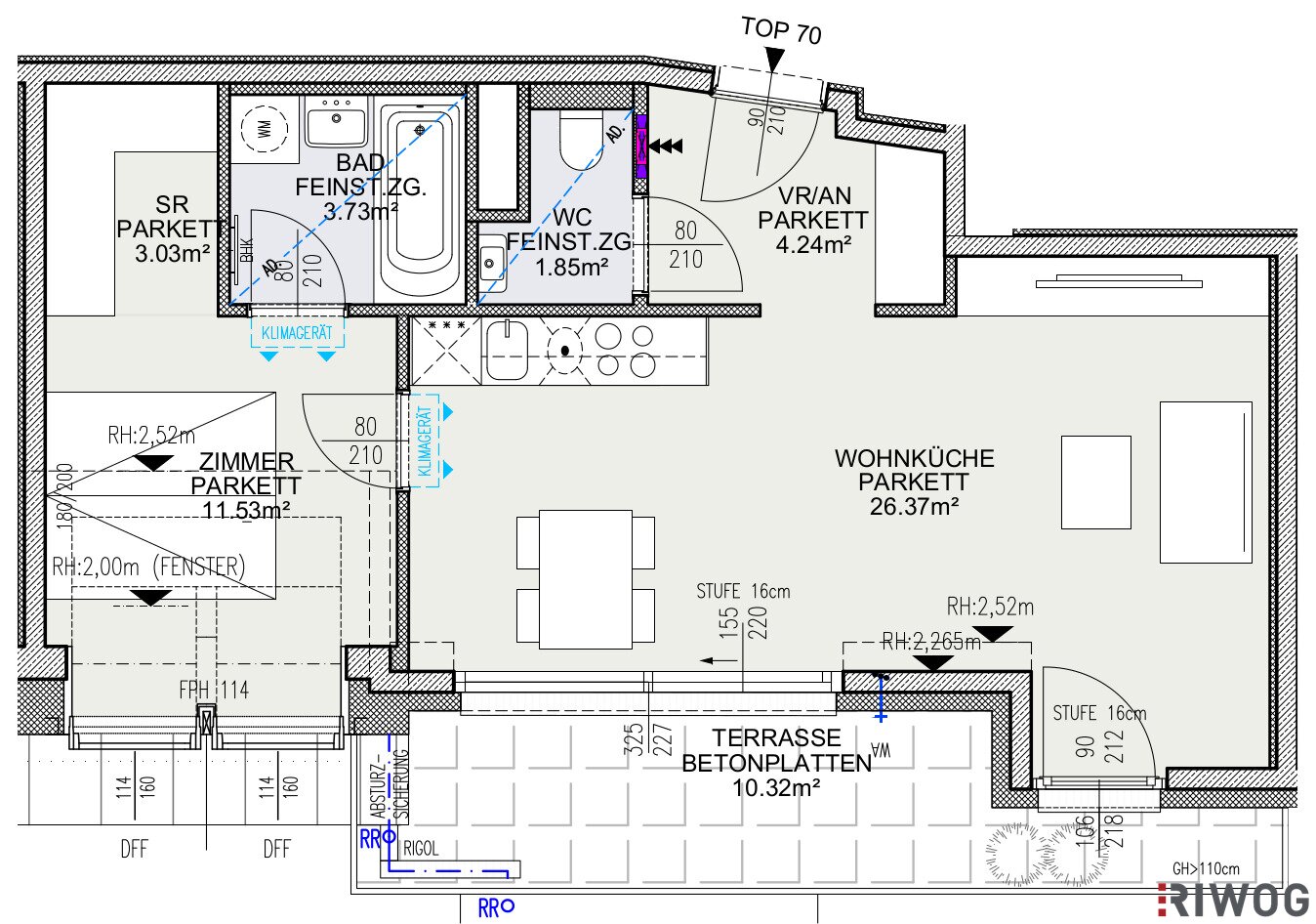
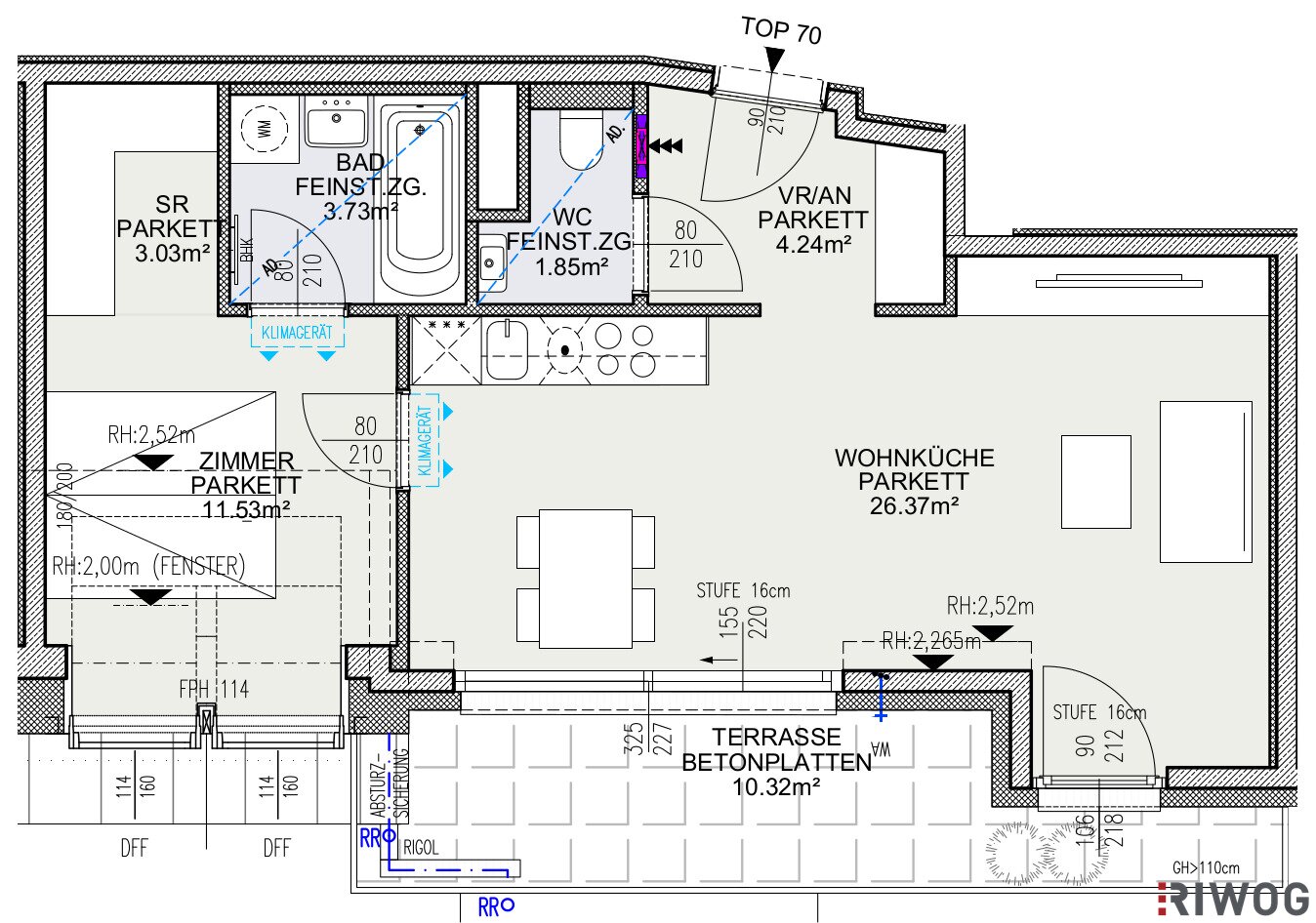
In diesem zukunftsweisenden Wohnprojekt im angesagten Meidling, an der Ecke zur Längenfeldgasse entstanden 78 Wohnungen und 2 Ateliers mit verschiedenen Raumgrößen und eignen sich aufgrund der intelligenten Grundrissplanung perfekt für Singles, Paare und Familien. Zusätzlich entstanden 31 Tiefgaragenstellplätze. Die modernen Wohneinheiten sind mit Parkett
Mehr lesen
Objekt ID: 75640
Preis: € 427.800
Nutzfläche: 51 m2
Gesamtfläche: 0 m2
Ziimmer insgesamt: 2
Schlafzimmer: 2
Badezimmer: 1
Nutzungsart: Anlage
Provisionspflichtig: ja
Provision: 15.400,80 € inkl. 20% USt.
HWB: 26,40 kWh/(m²*a)
HWB Klasse: B
FGEE: 0.73
E-Ausweis Gültig Bis:: 26.08.2031
Energieausweis Art: Bedarf
Balkon/Terrassen - Fläche: 10
Beziehbar: ab sofort
Etage: 1. DG
WC: 1
barrierefrei
Neubau
Personenaufzug
Badewanne
Fußbodenheizung
Kabel/Sat-TV
Fahrradraum
offene Küche
Offene Küche
Klimaanlage
Estrich
Fernwärme
Ähnliche Objekte
Sonnige Dachterrassenwohnung – Klimati...
€ 749.500
3
Schlafzimmer
1
Badezimmer
118 m2
Größe
Dezember 14, 2025
Gartenwohnung Nähe Pötzleinsdorfer Schloßpar...
€ 711.000
3
Schlafzimmer
2
Badezimmer
85 m2
Größe
Dezember 14, 2025
Exklusive Altbau-Residenz – Erstbezug in bes...
€ 675.000
2
Schlafzimmer
1
Badezimmer
77 m2
Größe
Dezember 14, 2025



![Gartenwohnung Nähe Pötzleinsdorfer Schloßpark [A] 5CQVoTEbsptoQTHyXBAABm](https://gesucht-gefunden.at/wp-content/uploadstorage/2025/12/5CQVoTEbsptoQTHyXBAABm-525x350.jpg)


