Objektbeschreibung
Nur € 174.750,– baugenehmigt pro Wohneinheit! DIESES PROJEKT KANN SOFORT UMGESETZT WERDEN!
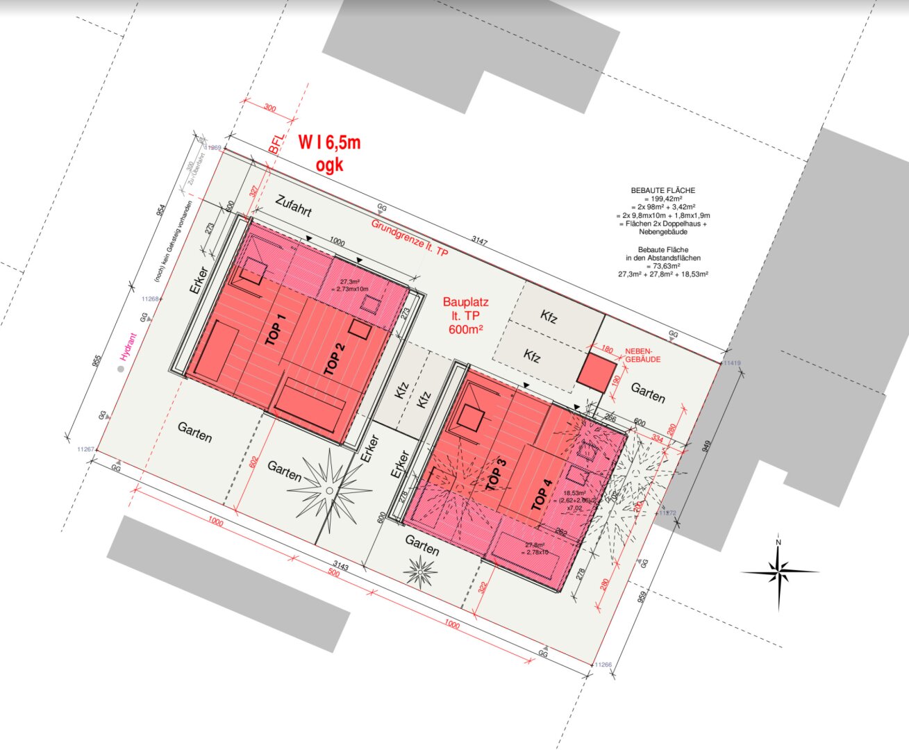
Angeboten wird ein baugenehmigtes Bauprojekt mit 4 Familienwohneinheiten. Zwei Doppelhäuser mit je 3 Geschoßebenen mit Eigengärten, Terrassen und PKW-Stellflächen. Der Baugrund befindet sich in sehr ruhiger und grüner Wohnlage, umgeben von Einfamilienhäusern. Über die A23 ist die schnelle
Mehr lesen
Objekt ID: 763093
Preis: € 699.000
Nutzfläche: 412 m2
Gesamtfläche: 689 m2
Ziimmer insgesamt: 0
Schlafzimmer: 0
Badezimmer: 0
Miete/m2 €: 1165
Nutzungsart: Wohnen
Provisionspflichtig: ja
Provision: 3% des Kaufpreises zzgl. 20% USt.
Ähnliche Objekte
WEIHNACHTSAKTION! PROVISIONSFREIES modernes ...
€ 1.085.000
7
Schlafzimmer
2
Badezimmer
215 m2
Größe
Dezember 13, 2025
Einzigartiges Biedermeier-Juwel in nobler Dö...
€ 1.990.000
11
Schlafzimmer
2
Badezimmer
272 m2
Größe
Dezember 13, 2025
Modernes Reihenhaus, möbliert mit Pool und E...
€ 795.000
4
Schlafzimmer
1
Badezimmer
120 m2
Größe
Dezember 13, 2025






