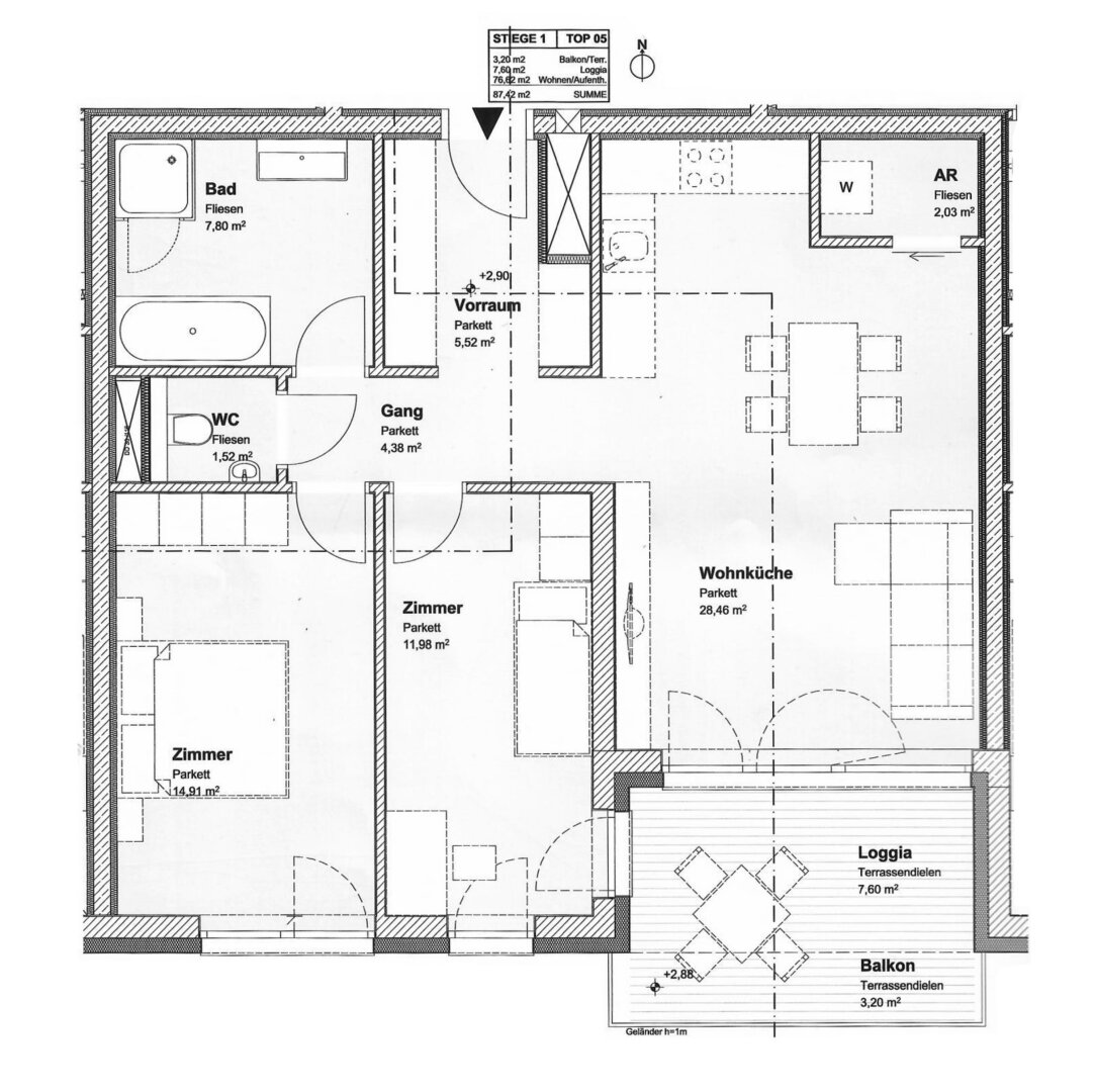
Objektbeschreibung
Diese High-Level-Wohnung in einem modernen Wohnhaus in der Lammaschgasse 54 – Erstbezug 2019 – ist durch ihre Lage und Ausführung eine ganz besondere Immobilie. Mitten in Floridsdorf, 8 Minuten zu Fuß von der U1 und doch in echter Ruhelage.
Drei Zimmer, eine herrliche Terrasse, die südlich ausgerichtet ist, der wunderbare
Mehr lesen
Objekt ID: 779963
Preis: € 435.000
Nutzfläche: 77 m2
Gesamtfläche: 0 m2
Ziimmer insgesamt: 3
Schlafzimmer: 3
Badezimmer: 0
Betriebskosten €: 210.6
Nutzungsart: Wohnen
HWB: 29 kWh/(m²*a)
HWB Klasse: B
FGEE: 0.64
Energieausweis Art: Bedarf
Balkon/Terrassen - Fläche: 10
Beziehbar: sofort
Etage: 1. Etage
Neubau
Einbauküche
Personenaufzug
Badewanne
Fußbodenheizung
Rollläden
Massiv
Massivbauweise
Erdwärme
Ähnliche Objekte
Familientraum I Erstbezug I Eigengarten
€ 711.000
3
Schlafzimmer
2
Badezimmer
85 m2
Größe
Dezember 7, 2025
Exklusive DG-Wohnung mit einzigartigem 360 G...
€ 1.200.000
3
Schlafzimmer
3
Badezimmer
103 m2
Größe
Dezember 7, 2025






