Objektbeschreibung
Das Wohnhaus in der Markhofgasse 2 bietet eine einzigartige Gelegenheit, in einem zentralen und dennoch ruhigen Teil von Wien zu wohnen. Mit insgesamt 34 Wohnungen, die teilweise saniert, jedoch größtenteils stark sanierungsbedürftig sind, haben Sie die Möglichkeit, Ihre Traumwohnung nach Ihren eigenen Vorstellungen zu gestalten oder von den bereits durchgeführten
Mehr lesen
Dokumente
Objekt ID: 787616
Preis: € 200.000
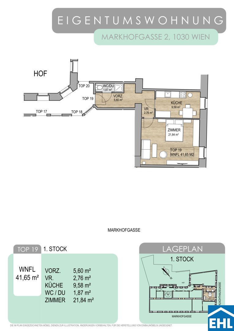
Nutzfläche: 42 m2
Gesamtfläche: 0 m2
Ziimmer insgesamt: 1
Schlafzimmer: 1
Badezimmer: 1
Nutzungsart: Wohnen
Provisionspflichtig: ja
Provision: 3% des Kaufpreises zzgl. 20% USt.
HWB: 128,80 kWh/(m²*a)
HWB Klasse: D
FGEE: 2.29
E-Ausweis Gültig Bis:: 28.10.2032
Energieausweis Art: Bedarf
Beziehbar: sofort
Etage: 1. Etage / 1. Etage
WC: 1
Einbauküche
Altbau
Gas
Parkett
Dusche
Ähnliche Objekte
3-Zimmer-Wohnung in Grün- Ruhelage – g...
€ 599.000
3
Schlafzimmer
1
Badezimmer
78 m2
Größe
Oktober 26, 2025






