Objektbeschreibung
Hier stehen Ihnen schön sanierte Büro- oder Geschäftsräumlichkeiten in guter Lage zur Verfügung!
Das moderne Objekt befindet sich vis a vis Stadthalle.
Der erste Mietvertrag wird auf 3 Jahre abgeschlossen und kann sehr gerne verlängert werden.
Besondere Merkmale
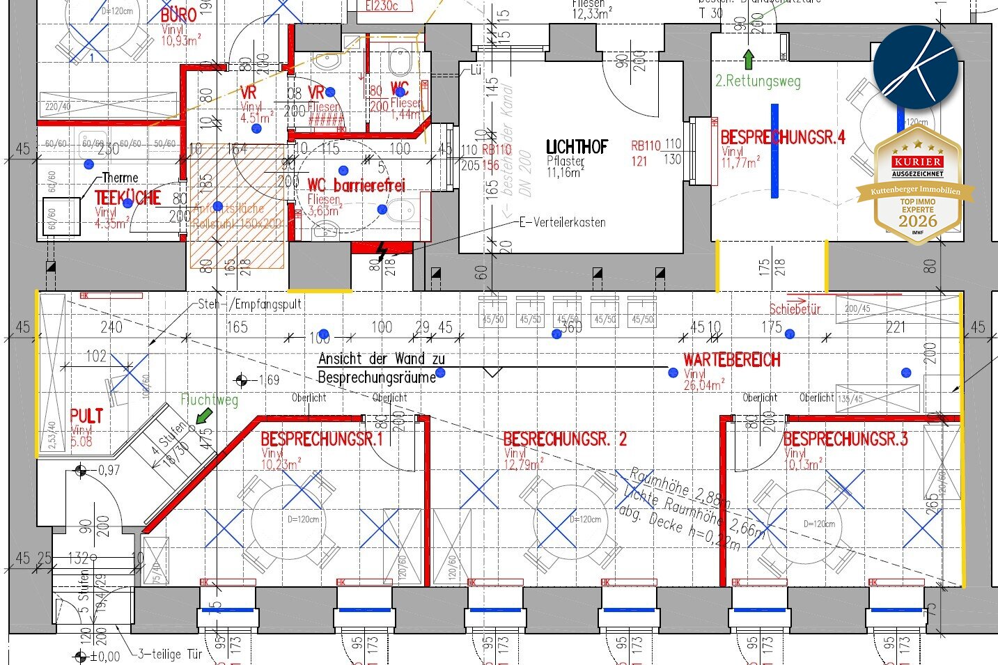
* 5 getrennt begehbare Räume
* 6 straßenseitige Fenster für Ihre
Mehr lesen
Objekt ID: 804494
Nutzfläche: 0 m2
Gesamtfläche: 109 m2
Ziimmer insgesamt: 5
Schlafzimmer: 5
Badezimmer: 0
Miete (netto) €: 880
USt €: 249.74
Nutzungsart: Gewerbe
Provisionspflichtig: ja
Beziehbar: SOFORT
Max. Mietdauer: unbefristet
Etage: Souterrain
WC: 2
Abstellräume: 1
Einbauküche
Etagenheizung
Gas
Abstellraum


















