Objektbeschreibung
Am sonnigen Südhang des Hackenbergs im Herzen Sieverings stehen einige einzigartige Villen mit Pool, PKW-Stellplatz, Sauna und wunderschöner Aussicht zum Verkauf.
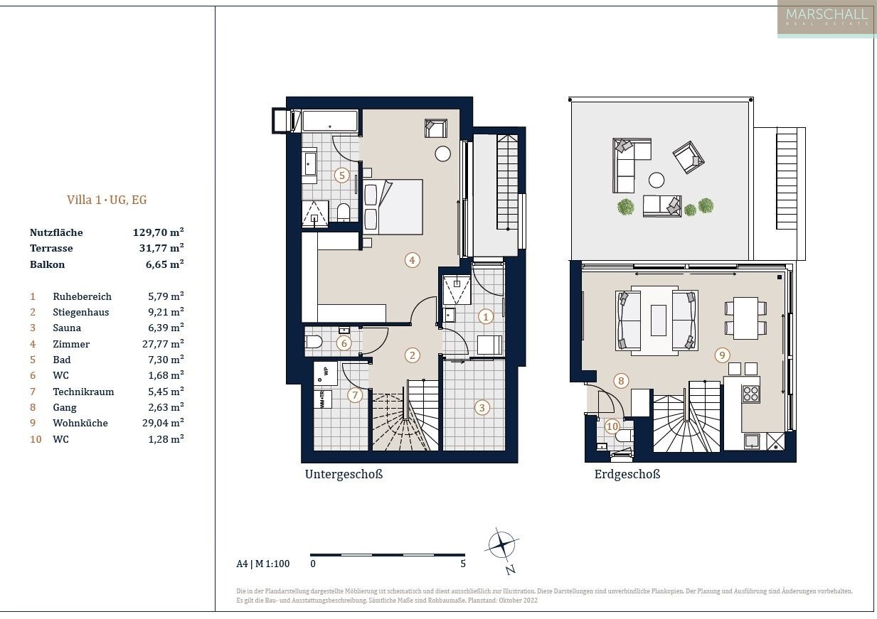
RAUMAUFTEILUNG
Erdgeschoß: Vorraum, WC, Wohnküche, 32 m² Terrasse
Untergeschoß: Schlafzimmer, Bad mit Dusche, Wanne und WC, Sauna, Ruhebereich mit Dusche, Technikraum, WC, Zugang zum Pool und 192 m² Garten
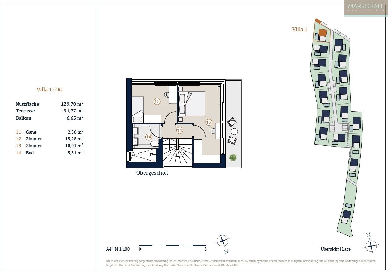
Obergeschoß: 2
Mehr lesen
Objekt ID: 87495
Preis: € 1.649.000
Nutzfläche: 130 m2
Gesamtfläche: 275 m2
Ziimmer insgesamt: 4
Schlafzimmer: 4
Badezimmer: 3
Miete/m2 €: 9700
Nutzungsart: Wohnen
Provisionspflichtig: ja
Provision: 3% des Kaufpreises zzgl. 20% USt.
HWB: 44,80 kWh/(m²*a)
HWB Klasse: C
FGEE: 0.61
E-Ausweis Gültig Bis:: 06.06.2032
Energieausweis Art: Bedarf
Anzahl Balkone: 1
Balkon/Terrassen - Fläche: 39
Beziehbar: Sommer 2024
WC: 4
Abstellräume: 1
Balkon
Neubau
Einbauküche
Gäste-WC
Bad mit Fenster
Fußbodenheizung
offene Küche
Abstellraum
Offene Küche
Freiplatz
Luft-Wärmepumpe
vollerschlossen
Wasch-/Trockenraum
Dielen
Swimmingpool
Sauna
DVBT-Empfang
Flachdach
Wellnessbereich
Ähnliche Objekte
Reihenhaus auf Baurechtsgrund mit Blick auf ...
€ 355.000
3
Schlafzimmer
1
Badezimmer
90 m2
Größe
Mai 10, 2026
1210 Wien, Kleingartengrundstück mit Ferienh...
€ 349.000
3
Schlafzimmer
1
Badezimmer
45 m2
Größe
Mai 10, 2026

















