Objektbeschreibung
Wir bieten ein visionäres Architektenprodukt auf einer bisher unerreichten Plattform an, dessen geheimnisvolle Ausstrahlung jede/n Enthusiastin und mutige/n Pfadfinderin verführt, der/die sich in das Neuland außergewöhnlicher Baukreationen wagt, zum Kauf an.
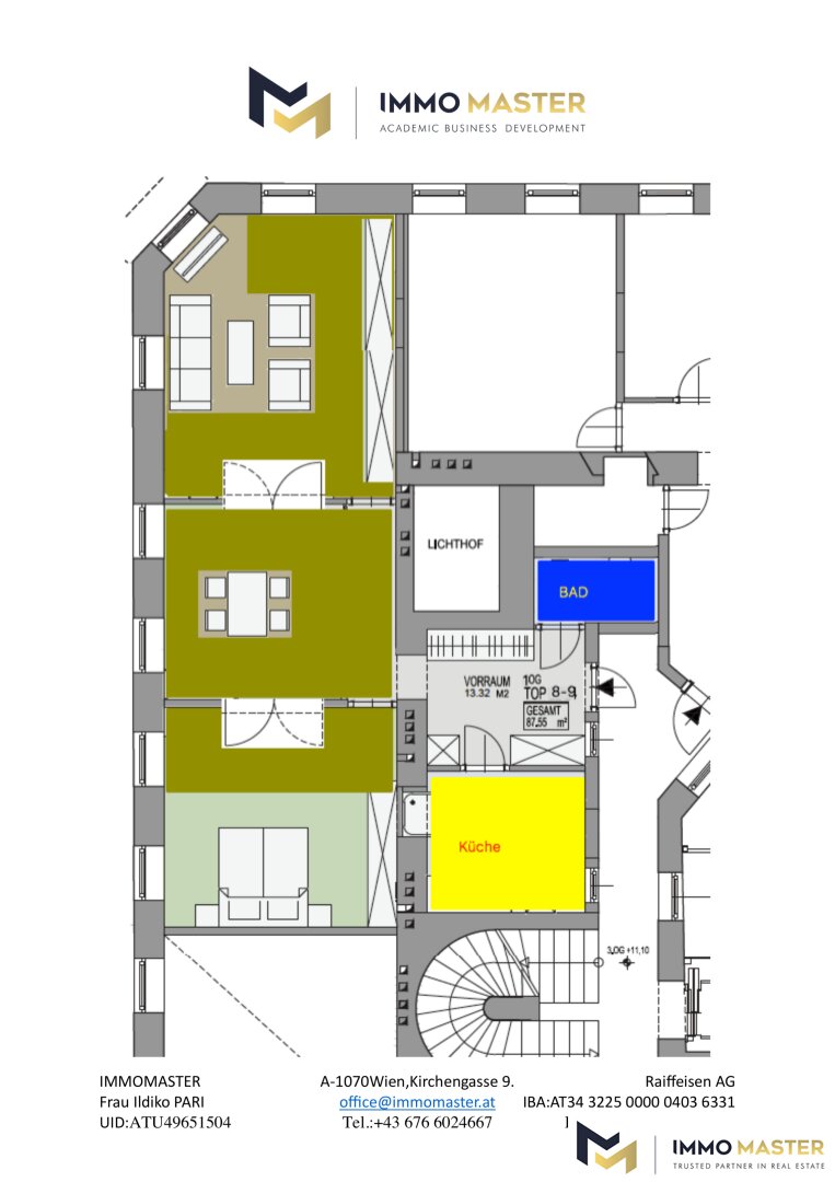
Ich empfehle diese Wohnung allen, die elegante, miteinander verbundene Räume lieben.
Vom zentralen, salonartigen Raum gelangt man links in
Mehr lesen
Objekt ID: 88065
Preis: € 375.000
Nutzfläche: 82 m2
Gesamtfläche: 0 m2
Ziimmer insgesamt: 3
Schlafzimmer: 3
Badezimmer: 1
Miete/m2 €: 4573.17
Nutzungsart: Wohnen
Provisionspflichtig: ja
Provision: 3% des Kaufpreises zzgl. 20% USt.
HWB: 70 kWh/(m²*a)
HWB Klasse: C
E-Ausweis Gültig Bis:: 30.11.2029
Energieausweis Art: Bedarf
Beziehbar: ab sofort
Etage: 1. Etage
WC: 1
barrierefrei
Einbauküche
Altbau
Etagenheizung
Gas
Bad mit Fenster
Kabel/Sat-TV
Massiv
Massivbauweise
vollerschlossen
schlüsselfertig mit Keller
Kabelkanäle
Satteldach
Fertigparkett
KFW70














