Objektbeschreibung
ORTLIEB – WOHNEN IM DA UND DURT – MIETWOHNUNGEN – EINZUG MIT NOV. 2025 – PROVISIONSFREI.
Wohnen im Da oder wohnen im Durt? Diese Frage stellt sich, wenn es um die Wahl deiner Traumwohnung in Ort im Innkreis geht. Ortlieb, ist auf jeden Fall genau dein Ort. Ein Ort, an
Mehr lesen
Dokumente
Adresse: Ort im Innkreis
Ort: Ort im Innkreis
Bezirk: 4974
Bundesland: Oberösterreich
PLZ: 4974
Land: Österreich
Objekt ID: 901038
Preis: € 999.99
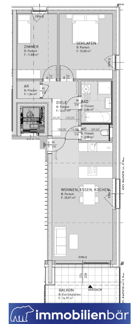
Nutzfläche: 79 m2
Gesamtfläche: 0 m2
Ziimmer insgesamt: 2
Schlafzimmer: 2
Badezimmer: 0
Miete (netto) €: 750.88
USt €: 90.91
Gesamtbelastung €: 999.99
Nutzungsart: Wohnen
Provisionspflichtig: nein
Kaution: 3 Bruttomonatsmieten
HWB: 36 kWh/(m²*a)
HWB Klasse: B
FGEE: 0.73
E-Ausweis Gültig Bis:: 18.04.2031
Energieausweis Art: Bedarf
Anzahl Balkone: 1
Balkon/Terrassen - Fläche: 14
Beziehbar: 01.11.2025
Etage: 2. DG
Balkon
barrierefrei
Personenaufzug
Fußbodenheizung
Freiplatz
Massiv
Massivbauweise
Dielen
Fernwärme
schlüsselfertig mit Keller
Flachdach






