Objektbeschreibung
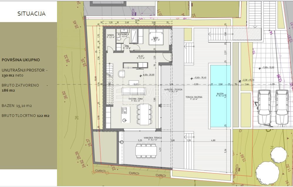
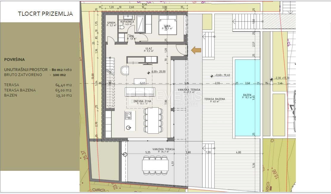
Istrien, Trget, Grundstück 525 m2 mit Baugenehmigung und Bauprojekt für ein Familienhaus mit Pool
Dieses Grundstück mit freiem Blick aufs Meer liegt 20 Meter vom Meer entfernt.
Es wurde eine Baugenehmigung eingeholt und die Ausgrabungen auf dem Gelände wurden durchgeführt.
Dem Projekt zufolge ist es möglich, ein Einfamilienhaus auf zwei
Mehr lesen
Objekt ID: 929830
Preis: € 330.000
Nutzfläche: 0 m2
Gesamtfläche: 0 m2
Ziimmer insgesamt: 0
Schlafzimmer: 0
Badezimmer: 0
Nutzungsart: Anlage
Provisionspflichtig: ja


































