Objektbeschreibung
Opatija Umgebung, Poljane, Villa mit Pool und Meerblick
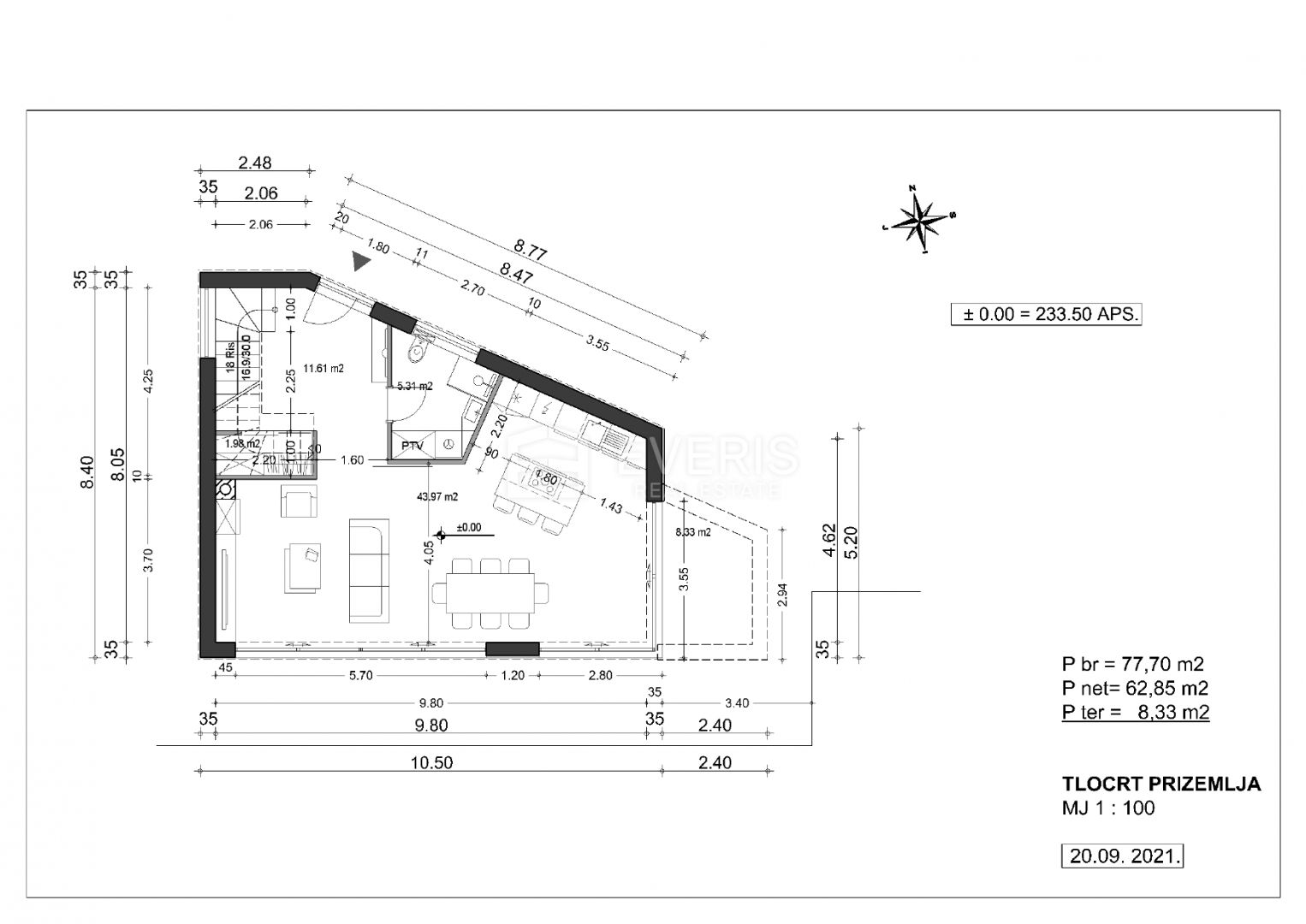
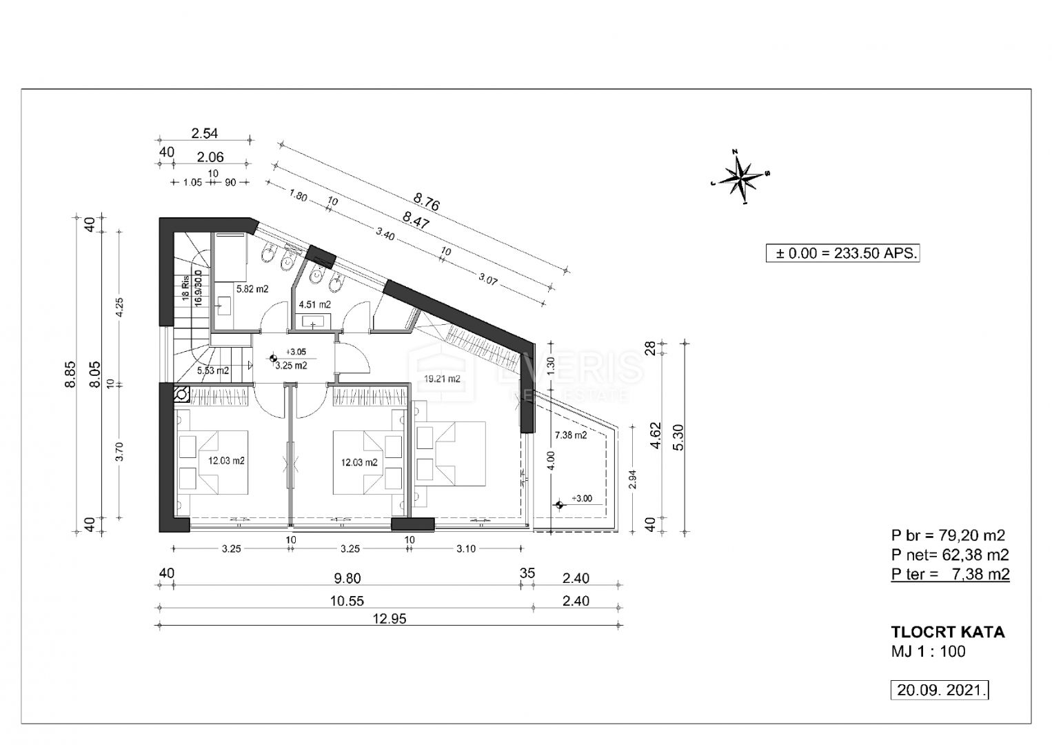
Die geräumige Villa von 140 m2 besteht aus zwei Etagen: dem Erdgeschoss und dem ersten Stock, bestehend aus:
▪ Erdgeschoss: Flur, Treppe, Wohnzimmer, Küche und Essbereich (43,97 m2) mit Zugang zu einer Terrasse von 8,33 m2 und einem Badezimmer,
▪ Erster
Mehr lesen
Objekt ID: 931574
Preis: € 890.000
Nutzfläche: 0 m2
Gesamtfläche: 604 m2
Ziimmer insgesamt: 5
Schlafzimmer: 5
Badezimmer: 3
Nutzungsart: Wohnen
Provisionspflichtig: ja



















