Objektbeschreibung
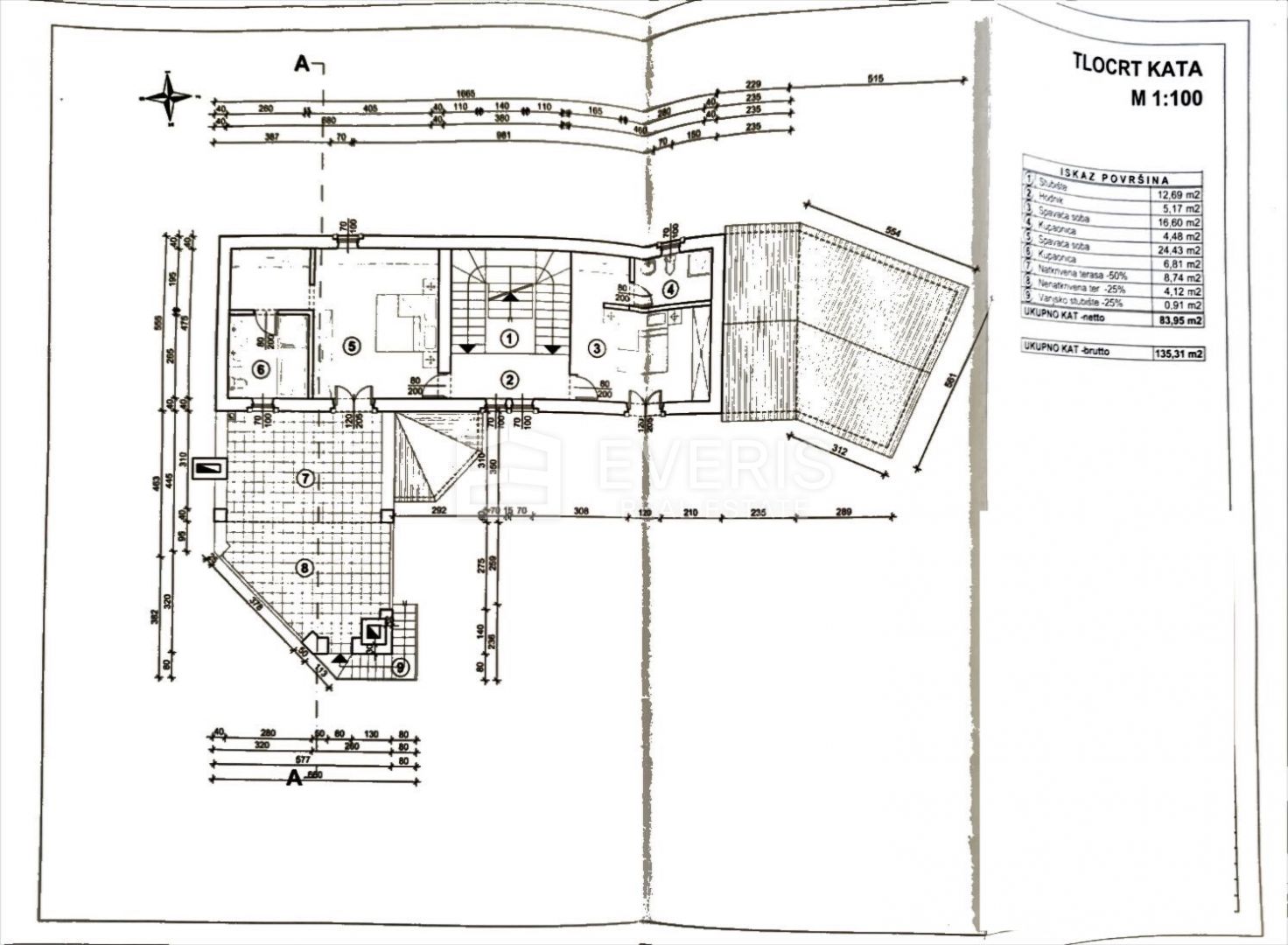
Istrien, Tinjan, neugebaute Steinvilla im traditionellen istrischen Stil, Wohnfläche 232 m2, mit Swimmingpool
Grundstücksfläche: 1.362 m2
Diese, von viel Grün umgebene Steinvilla, befindet sich im einen kleinen Ort in der Gemeinde Tinjan, in der Nähe des Lim Kanals (14 km), Vrsar (20 km), Rovinj (27 km) und des Flughafens Pula
Mehr lesen
Objekt ID: 932110
Preis: € 690.000
Nutzfläche: 0 m2
Gesamtfläche: 1.362 m2
Ziimmer insgesamt: 4
Schlafzimmer: 4
Badezimmer: 3
Nutzungsart: Wohnen
Provisionspflichtig: ja
WC: 1








































