Erweiterte Suche
Suchagent aktivieren
Exklusive Anzeigen

Kastav, Brestovice, wunderschöne Villa mit Panoramablick

€ 1.500.000,00

,

8 Zimmer
zu Favoriten hinzufügen
teilen
Suchergebnisse

Objektbeschreibung

Kastav, Brestovice – Wunderschöne Villa mit Panoramablick

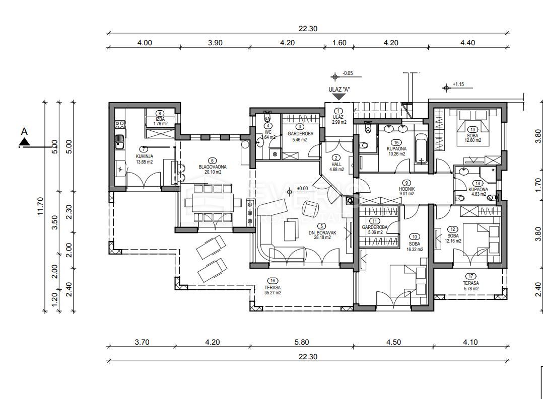
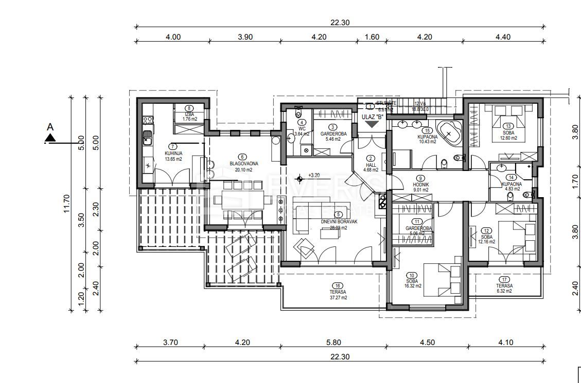
Die Villa besteht aus Erdgeschoss und Obergeschoss, wobei jede Etage eine separate Wohnung umfasst. Die Gesamtfläche beträgt 389,87 m²:

▪ Erdgeschoss: Wohnung mit einer Gesamtfläche von 191,75 m², bestehend aus: Eingang (2,99 m²), Flur (4,68 m²), Garderobe (5,46 m²), Toilette (3,64 m²), Wohnzimmer
Mehr lesen

Ort:
Bezirk:
PLZ: 51215
Land: Croatia
Objekt ID: 934291
Preis: € 1.500.000
Nutzfläche: 0 m2
Gesamtfläche: 720 m2
Ziimmer insgesamt: 8
Schlafzimmer: 8
Badezimmer: 0
Nutzungsart: Wohnen
Provisionspflichtig: ja

Ähnliche Objekte

vergleichen
1776172069 nekretnina koja odmah donosi prihod 910835

Haus Kastav, 377m2

€ 398.000
7
Schlafzimmer
April 26, 2026
vergleichen
1752784573 dji 0084

Wohnung Rubeši, Kastav, 150m2

€ 565.000
4
Schlafzimmer
2
Badezimmer
April 26, 2026
vergleichen
1752784581 dji 0078

KASTAV, RUBEŠI – Doppelhaushälfte 150m2, Woh...

€ 565.000
4
Schlafzimmer
2
Badezimmer
April 26, 2026

Vergleichen