Erweiterte Suche
Suchagent aktivieren
Exklusive Anzeigen

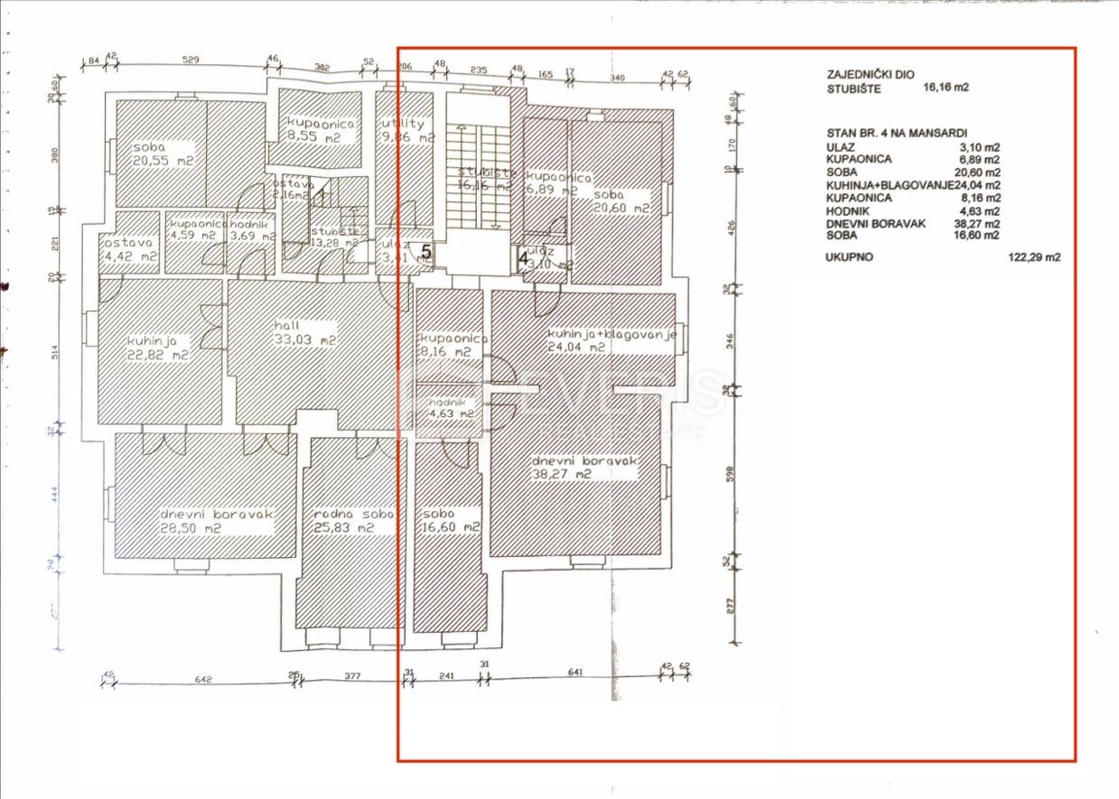
Opatija, Zentrum, Wohnung, 123 m2

€ 720.000,00

,

3 Zimmer
zu Favoriten hinzufügen
teilen
Suchergebnisse

Objektbeschreibung

Opatija, Zentrum

Wohnung mit Meerblick im zweiten Stock einer Villa im Jugendstil. Tolle Lage.

Die Wohnung erstreckt sich über 123 m2 und besteht aus einem geräumigen Wohnzimmer mit Kamin, zwei Schlafzimmern, Küche, Esszimmer und zwei Badezimmern.

Die Wohnung ist komplett renoviert und gut ausgestattet worden.

Eine ruhige und intime Lage
Mehr lesen

Ort:
Bezirk:
PLZ: 51410
Land: Croatia
Objekt ID: 935401
Preis: € 720.000
Nutzfläche: 0 m2
Gesamtfläche: 0 m2
Ziimmer insgesamt: 3
Schlafzimmer: 3
Badezimmer: 2
Nutzungsart: Wohnen
Provisionspflichtig: ja

Ähnliche Objekte

vergleichen
1751963508 dsc 0977

Flats Opatija, 100m2

€ 399.000
3
Schlafzimmer
Mai 10, 2026
vergleichen
1403623048 090 kopiraj 1

Wohnung Opatija, 100m2

€ 1.150.000
6
Schlafzimmer
2
Badezimmer
vergleichen
1403623019 079 kopiraj

Wohnung Opatija – Centar, Opatija, 200...

€ 1.150.000
6
Schlafzimmer
2
Badezimmer


Želimir Bagić

Kontaktaufnahme









    • Preisinformation
      Objektpreis720.000,00 €

    Vergleichen