Erweiterte Suche
Suchagent aktivieren
Exklusive Anzeigen

Grundstück Opatija

€ 175.000,00

,

zu Favoriten hinzufügen
teilen
Suchergebnisse

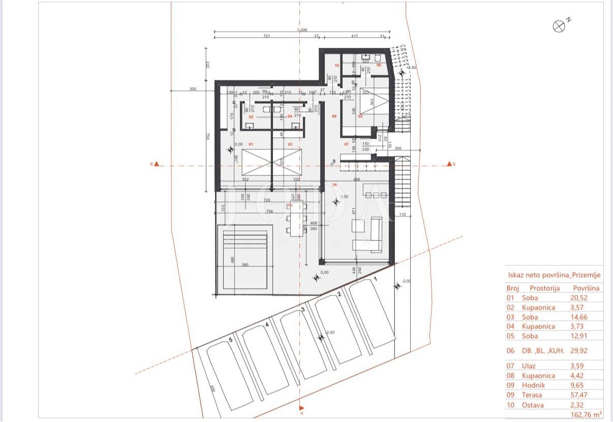
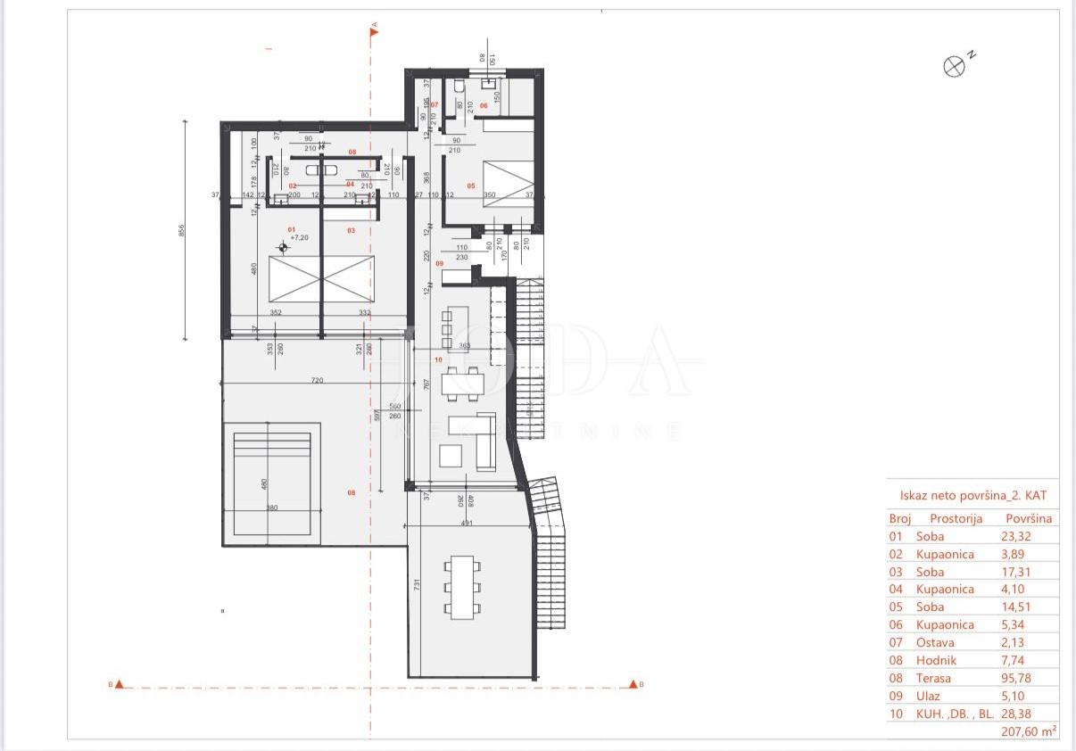
Objektbeschreibung

Baustelle mit schöner Aussicht auf die Kvarner-Bucht.
In einem leichten Anstieg von der Straße, das Gelände gewinnt mehr spektakuläre Ausblicke mit jedem Meter. Ein wenig versteckt von der Hauptstraße, bietet es Intimität, aber mit der gesamten Infrastruktur und in einem bereits gebildeten Mikrostandort.

Es wurde ein Konzept für ein
Mehr lesen

Ort:
Bezirk:
PLZ: 51211
Land: Croatia
Objekt ID: 936744
Preis: € 175.000
Nutzfläche: 0 m2
Gesamtfläche: 0 m2
Ziimmer insgesamt: 0
Schlafzimmer: 0
Badezimmer: 0
Nutzungsart: Anlage
Provisionspflichtig: ja

Ähnliche Objekte

vergleichen
1749205554 img 8701

Grundstück Matulji, 713m2

€ 150.000
April 26, 2026
vergleichen
1749206333 img 8696

Grundstück Matulji, 1.756m2

€ 342.500
April 26, 2026

Vergleichen