Objektbeschreibung
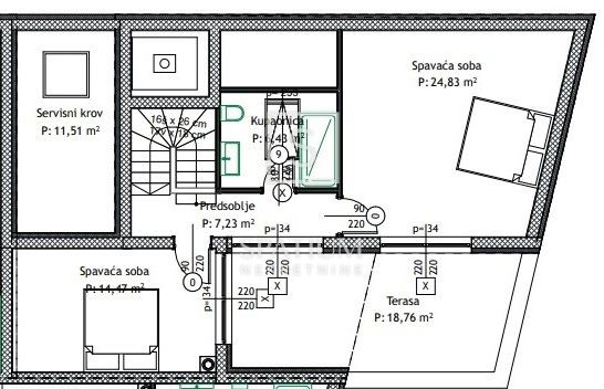
ROVINJ, wir bieten eine Wohnung in einem neuen Gebäude nur 150 m vom Meer entfernt. Die Wohnung besteht aus einer Küche mit Esszimmer und Wohnzimmer, zwei Schlafzimmern, einem Badezimmer, einem Hauswirtschaftsraum mit einer Gesamtfläche von 85,61 m2 und einer Terrasse von 18,70 m2. Es verfügt über zwei Parkplätze in der
Mehr lesen
Objekt ID: 941502
Preis: € 956.800
Nutzfläche: 0 m2
Gesamtfläche: 0 m2
Ziimmer insgesamt: 4
Schlafzimmer: 4
Badezimmer: 2
Nutzungsart: Wohnen
Provisionspflichtig: ja








