Objektbeschreibung
KAŠTELIR, wir bieten ein modernes Haus in einem Neubau an, gelegen in einem ruhigen Teil des Dorfes mit herrlichem Blick auf das Meer und in der Nähe von Poreč. Das Haus ist ideal für diejenigen, die Ruhe und Privatsphäre suchen und gleichzeitig in der Nähe aller notwendigen Einrichtungen sein möchten.
Mehr lesen
Objekt ID: 941546
Preis: € 1.350.000
Nutzfläche: 0 m2
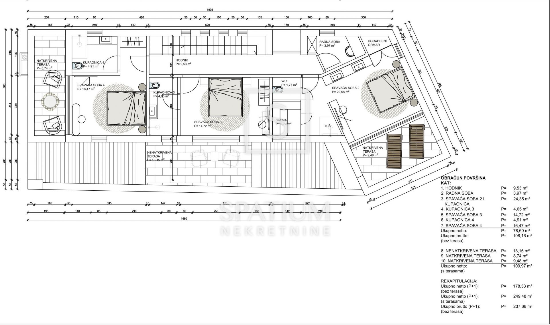
Gesamtfläche: 1.026 m2
Ziimmer insgesamt: 6
Schlafzimmer: 6
Badezimmer: 4
Nutzungsart: Wohnen
Provisionspflichtig: ja
WC: 1





