Objektbeschreibung
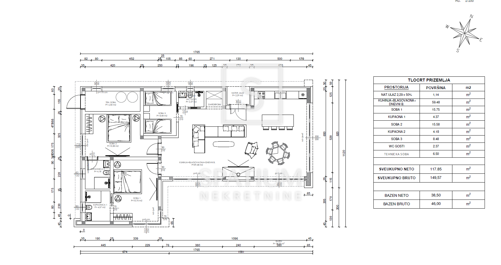
TAR, wir haben ein wunderschönes neues Gebäude mit Schwimmbad nur 3,5 km vom Meer entfernt erhalten. Bei der Immobilie handelt es sich um ein modernes Fertighaus mit einer Gesamtfläche von 132 m² und einem 44 m² großen Swimmingpool. Es besteht aus einem überdachten Eingang, der zu einem „offenen“ Wohnzimmer mit
Mehr lesen
Objekt ID: 943852
Preis: € 832.000
Nutzfläche: 0 m2
Gesamtfläche: 500 m2
Ziimmer insgesamt: 4
Schlafzimmer: 4
Badezimmer: 2
Nutzungsart: Wohnen
Provisionspflichtig: ja
WC: 1











