Erweiterte Suche
Suchagent aktivieren
Exklusive Anzeigen

DOPPELHAUSHÄLFTE

€ 680.000,00

,

5 Zimmer
zu Favoriten hinzufügen
teilen
Suchergebnisse

Objektbeschreibung

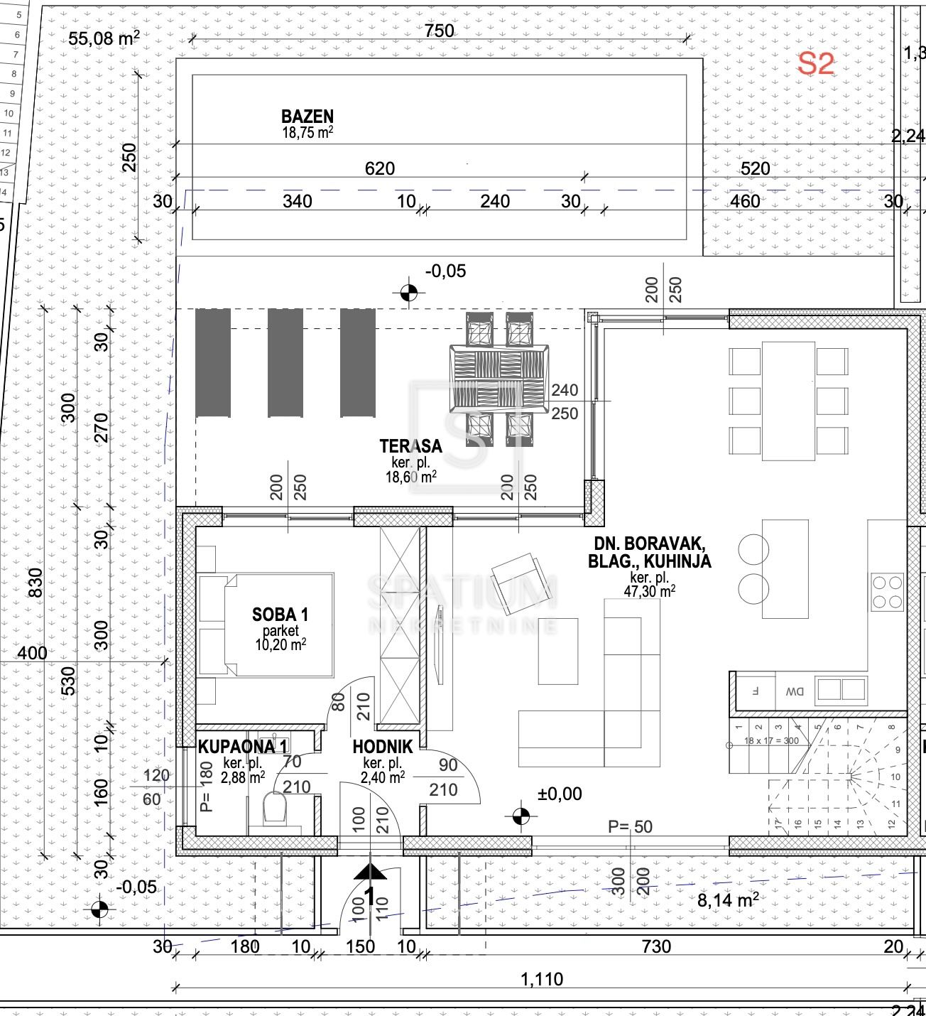
MALINSKA, im Angebot haben wir eine Wohneinheit mit Schwimmbad in einem Doppelfamilienhaus erhalten. Es hat eine Fläche von 150 m2 und besteht aus einem Erdgeschoss und einem ersten Stock. Das Erdgeschoss besteht aus einer Eingangshalle, einer Garderobe, einer Küche mit Esszimmer, einem Badezimmer und einem geräumigen Wohnzimmer mit Zugang zu
Mehr lesen

Bezirk:
PLZ: 51511
Land: Croatia
Objekt ID: 945096
Preis: € 680.000
Nutzfläche: 0 m2
Gesamtfläche: 100 m2
Ziimmer insgesamt: 5
Schlafzimmer: 5
Badezimmer: 4
Nutzungsart: Wohnen
Provisionspflichtig: ja

Ähnliche Objekte

vergleichen
1747397251 img e19b360ce8ccfc738be48a0673756962 v

Haus Malinska, Malinska-Dubašnica, 150m2

€ 650.000
4
Schlafzimmer
April 26, 2026
vergleichen
1757594417 01427f37 ae81 4efe 86fd 56863bdd6368

Haus Malinska, Malinska-Dubašnica, 200m2

€ 750.000
5
Schlafzimmer
April 26, 2026
vergleichen
1775930852 1358873942 140087 0

Appartementhaus mit sechs möblierten Wohnung...

€ 1.100.000
12
Schlafzimmer
6
Badezimmer
April 26, 2026


Vesna Smolčić

Kontaktaufnahme









    • Preisinformation
      Objektpreis680.000,00 €

    Vergleichen