Erweiterte Suche
Suchagent aktivieren
Exklusive Anzeigen

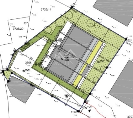
Grundstück Krk, 558m2

€ 850.000,00

,

zu Favoriten hinzufügen
teilen
Suchergebnisse

Objektbeschreibung

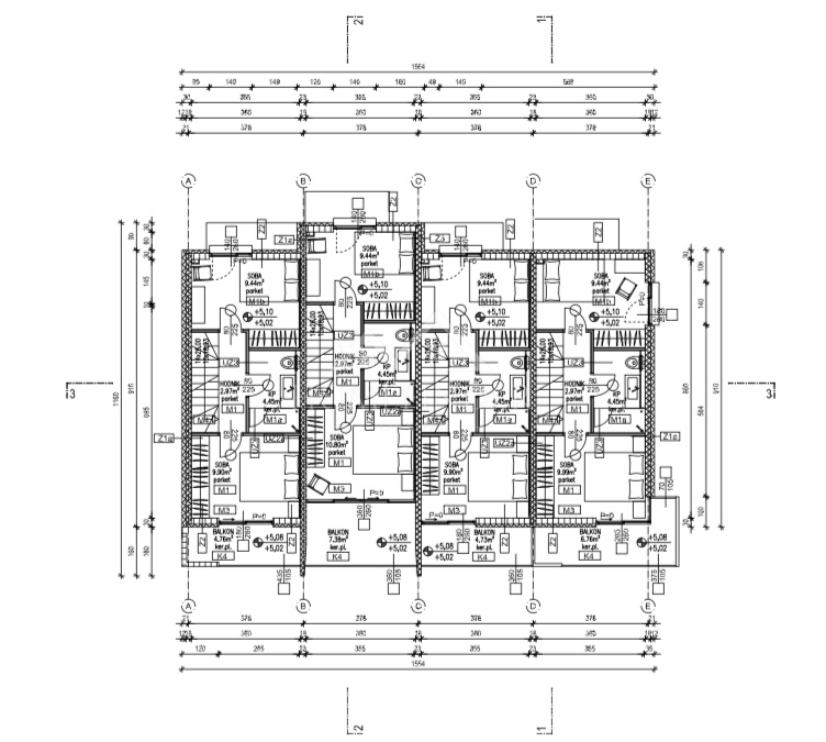
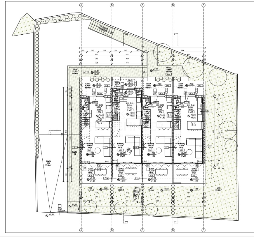
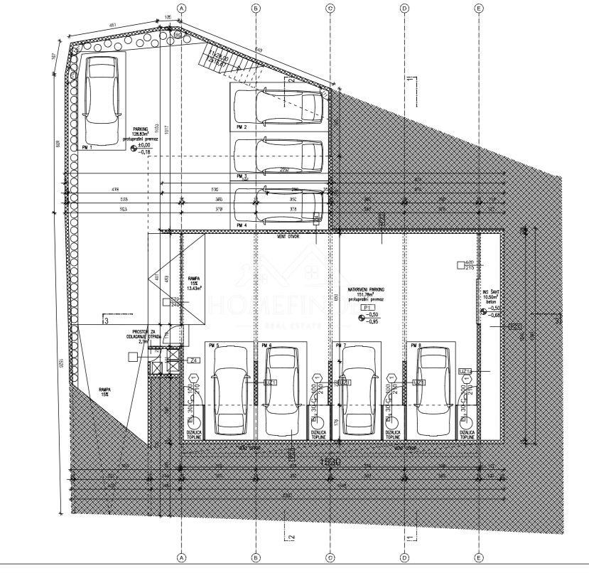
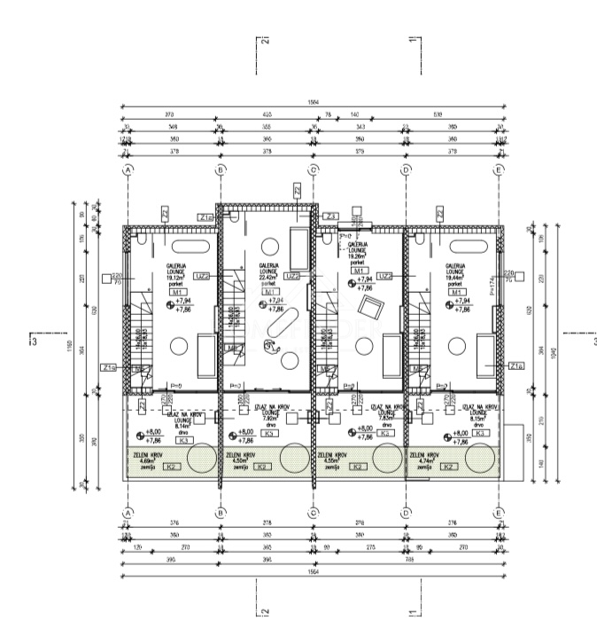
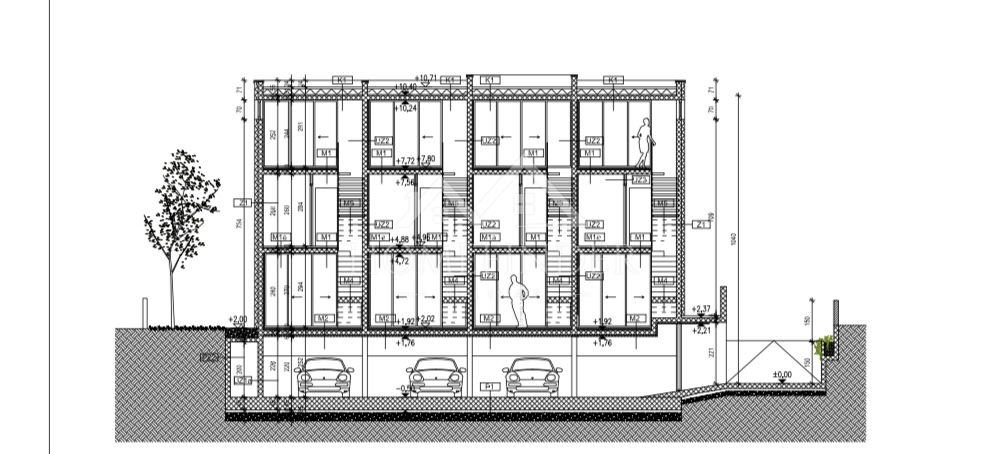
Zum Verkauf steht ein komplettes Projekt in der Bauphase an einem attraktiven Standort in der Stadt Krk, nur 250 Meter vom Meer entfernt. Das Gebäude besteht aus vier Wohnungen und verfügt über Außenparkplätze und eine Tiefgarage. Zum Projekt gehört eine ordnungsgemäße Baugenehmigung, die einen reibungslosen Baufortschritt ermöglicht und zukünftigen Eigentümern
Mehr lesen

Ort:
Bezirk:
PLZ: 51500
Land: Croatia
Objekt ID: 956005
Preis: € 850.000
Nutzfläche: 0 m2
Gesamtfläche: 0 m2
Ziimmer insgesamt: 0
Schlafzimmer: 0
Badezimmer: 0
Nutzungsart: Anlage
Provisionspflichtig: ja

Vergleichen