Objektbeschreibung
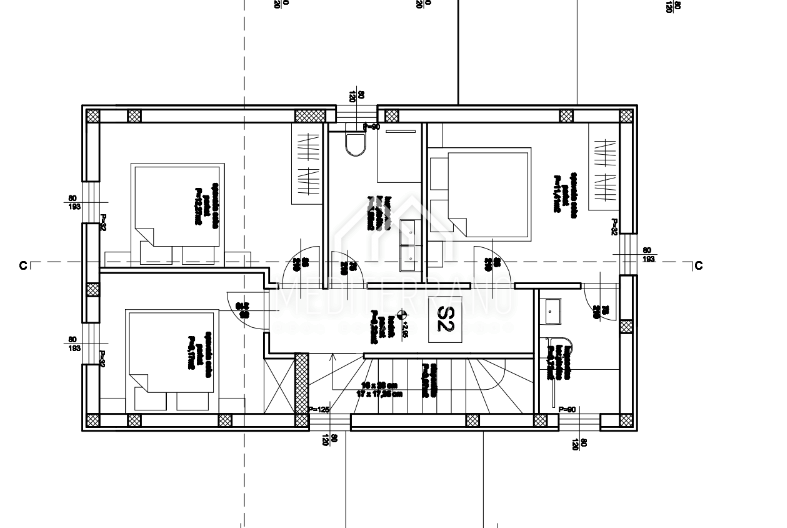
House for sale in Brodarica (part of triplex). The construction is in process and the end of construction should be by the end of 2025. There is ground floor and 1st floor in the house.
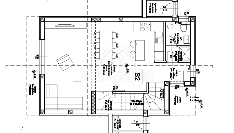
On the ground floor: spacious kitchen, dining room and living room, toillet, hallway, storage
Mehr lesen
Objekt ID: 960068
Preis: € 320.000
Nutzfläche: 0 m2
Gesamtfläche: 0 m2
Ziimmer insgesamt: 4
Schlafzimmer: 4
Badezimmer: 2
Nutzungsart: Wohnen
Provisionspflichtig: ja
WC: 1













