Erweiterte Suche
Suchagent aktivieren
Exklusive Anzeigen

TAR-VABRIGA – LUXUSVILLA MIT POOL

€ 1.300.000,00

,

4 Zimmer
zu Favoriten hinzufügen
teilen
Suchergebnisse

Objektbeschreibung

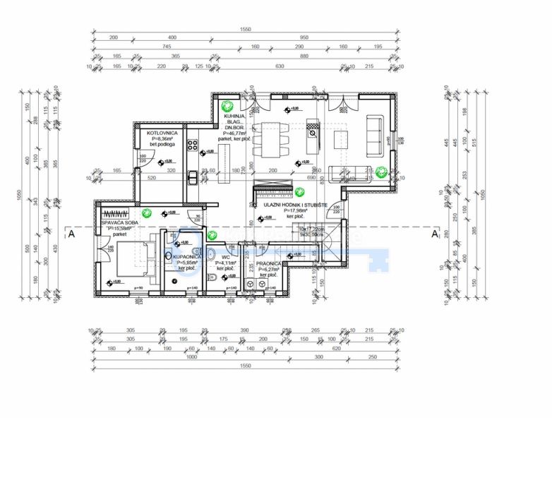
Zum Verkauf steht eine im Bau befindliche Luxusvilla mit einer Wohnfläche von 153,90 m2. Es besteht aus dem Erdgeschoss und dem ersten Stock. Im Erdgeschoss gibt es einen Eingangsbereich und Treppenhaus, Waschküche, Toilette, Badezimmer, Schlafzimmer, Heizraum, Wohnzimmer, Küche und Esszimmer. Im ersten Stock befinden sich zwei Schlafzimmer und zwei Badezimmer.
Mehr lesen

Bezirk:
PLZ: 52440
Land: Croatia
Objekt ID: 961100
Preis: € 1.300.000
Nutzfläche: 0 m2
Gesamtfläche: 650 m2
Ziimmer insgesamt: 4
Schlafzimmer: 4
Badezimmer: 3
Nutzungsart: Wohnen
Provisionspflichtig: ja
WC: 1

Ähnliche Objekte

vergleichen
1761826048 dji 0100

Reihenhaus zur vollständigen Renovierung – r...

€ 160.000
3
Schlafzimmer
1
Badezimmer
Mai 10, 2026
vergleichen
1753348639 nea 1 1

Moderne und komplett möblierte Maisonette 80...

€ 850.000
5
Schlafzimmer
3
Badezimmer
Mai 10, 2026
vergleichen
1755785670 dji 0359

Ein modernes, geräumiges Haus mit Swimmingpo...

€ 750.000
5
Schlafzimmer
4
Badezimmer
Mai 10, 2026


Dragan Nešić

Kontaktaufnahme









    • Preisinformation
      Objektpreis1.300.000,00 €

    Vergleichen