Erweiterte Suche
Suchagent aktivieren
Exklusive Anzeigen

AKTION! REDUZIERTER PREIS! VRBOVSKO – GROSSES BAULAND

€ 245.000,00

,

zu Favoriten hinzufügen
teilen
Suchergebnisse

Objektbeschreibung

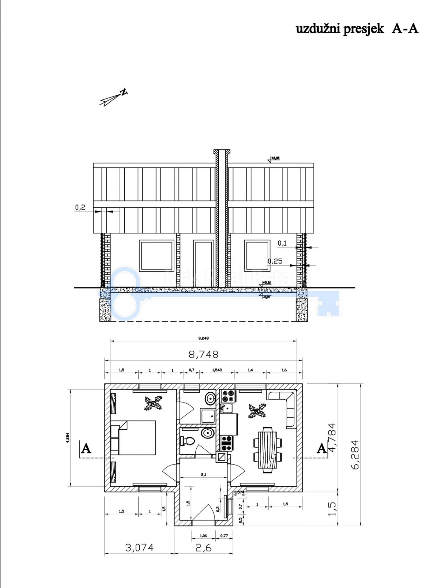
Zum Verkauf steht ein 6028 m2 großes Baugrundstück. Die gesamt notwendige Infrastruktur reicht bis zum Grundstück. Es hat eine gute Lage mit zwei asphaltierten Zufahrtsstraßen.

ID CODE: z048

Bezirk:
PLZ: 51326
Land: Croatia
Objekt ID: 962018
Preis: € 245.000
Nutzfläche: 0 m2
Gesamtfläche: 0 m2
Ziimmer insgesamt: 0
Schlafzimmer: 0
Badezimmer: 0
Nutzungsart: Anlage
Provisionspflichtig: ja


Dragan Nešić

Kontaktaufnahme









    • Preisinformation
      Objektpreis245.000,00 €

    Vergleichen