Objektbeschreibung
Alle verfügbaren Wohnungen unter: www.accenta-immo.at/genoch8 [https://www.accenta-immo.at/genoch8]
Ihre Anlegerwohnung mit Rundum-Sorglos-Paket am Genochplatz 8
Erleben Sie, wie unkompliziert Immobilieninvestment sein kann – transparent, professionell und renditestark.
Mit einer Anlegerwohnung im Projekt Genochplatz 8 entscheiden Sie sich für eine clevere Kombination aus:
* Kurzzeitvermietung – für maximale Rendite
* Langzeitvermietung
Mehr lesen
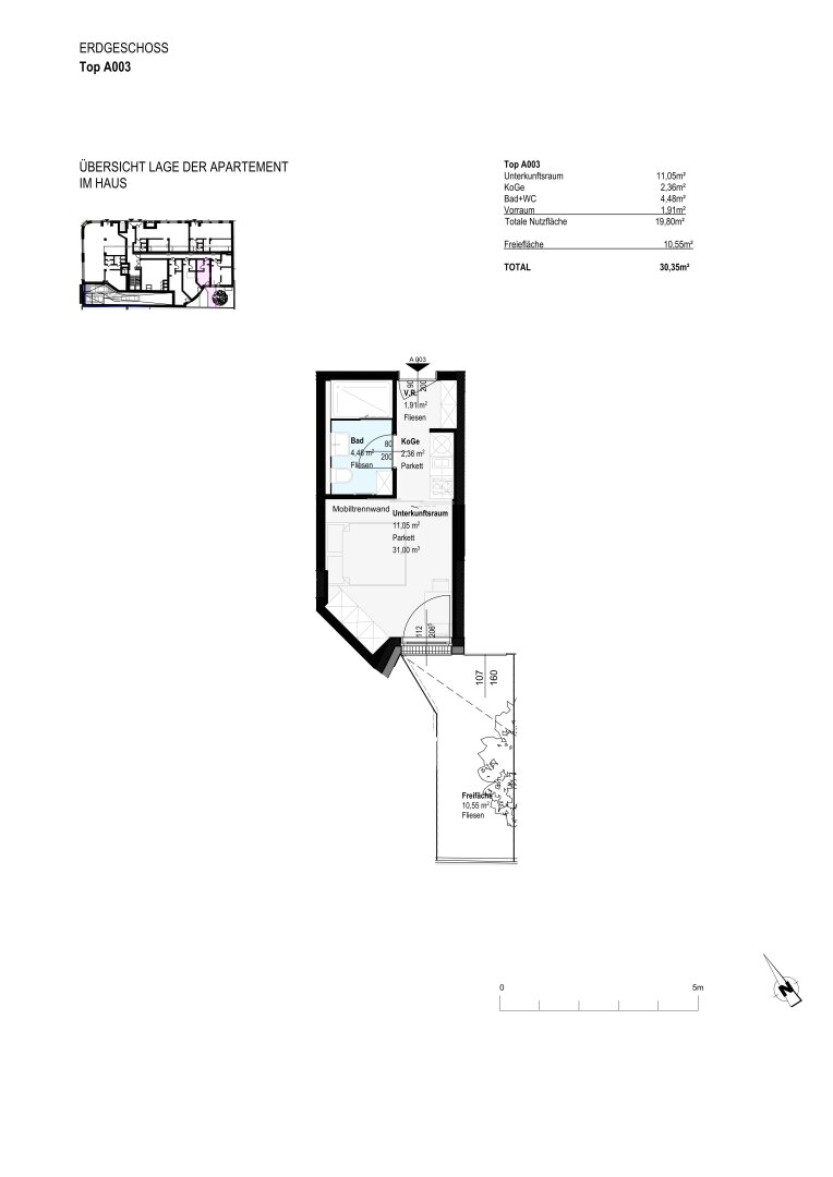
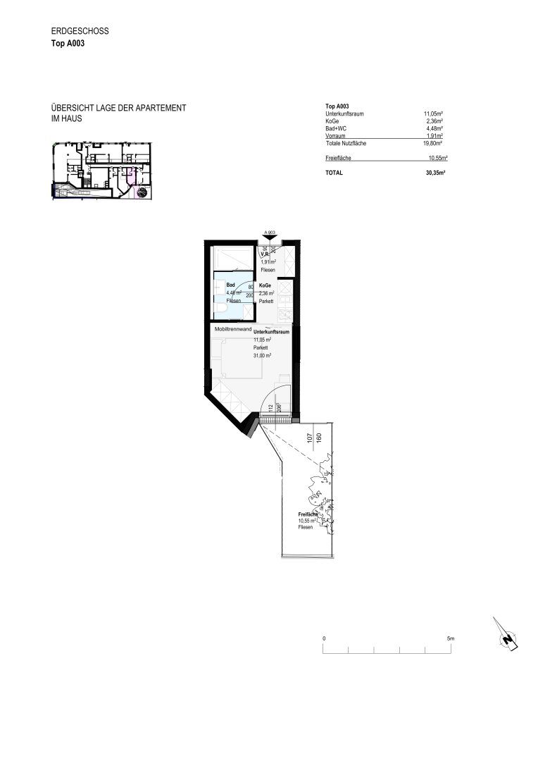
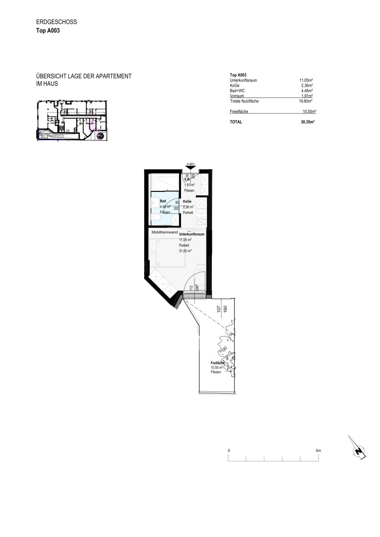
Objekt ID: 974523
Preis: € 123.446
Nutzfläche: 20 m2
Gesamtfläche: 30 m2
Ziimmer insgesamt: 1
Schlafzimmer: 1
Badezimmer: 1
Nutzungsart: Anlage
Provisionspflichtig: ja
Provision: 3% des Kaufpreises zzgl. 20% USt.
HWB: 37,20 kWh/(m²*a)
HWB Klasse: B
FGEE: 0.64
E-Ausweis Gültig Bis:: 17.09.2034
Energieausweis Art: Bedarf
Anzahl Balkone: 1
Balkon/Terrassen - Fläche: 10
Beziehbar: 2026
Etage: EG
WC: 1
Balkon
barrierefrei
Neubau
Personenaufzug
Parkett
Dusche
Fußbodenheizung
Kabel/Sat-TV
Fahrradraum
Abstellraum
Rollläden
Luft-Wärmepumpe
Ähnliche Objekte
Perfekt für Familien nahe S-Bahn Jedlersdorf...
€ 379.000
3
Schlafzimmer
1
Badezimmer
76 m2
Größe
Oktober 29, 2025






